EasyManua.ls Logo

Trane RT-PRC010-EN - Page 88

Trane RT-PRC010-EN
104 pages
Print Icon
To Next Page IconTo Next Page
To Next Page IconTo Next Page
To Previous Page IconTo Previous Page
To Previous Page IconTo Previous Page
Loading...
RT-PRC010-EN88
Dimensional
Data
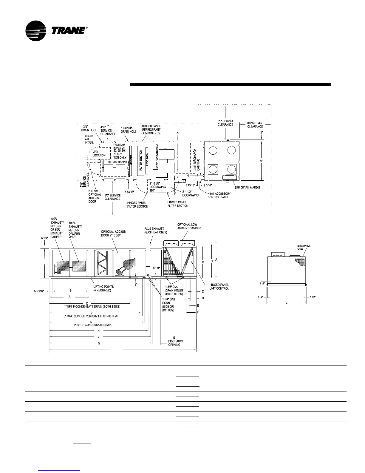
Figure DD-2 20-75 Ton Heating/Cooling Unit Dimensions
(20 - 75 Tons)
Page 70
T
Nom. Tons H L W A B C D E F G J
1
K
1
M N P QRSTUVXZ
16-9¾ 16-6
20 & 25 5-8
15
/
16
24-1
3
/
8
7-6
1
/
2
6-4
3
/
16
5-3
1
/
8
0-9
1
/
2
1-3
5
/
8
1-7
9
/
16
1-3
1
/
2
2-2
1
/
2
16-3
13
/
16
16-7 15-5
5
/
16
13-3 7-0 6-6
15
/
16
3-9
5
/
16
3-4
3
/
8
5-7 0-5
13
/
16
7-9
1
/
2
16-9¾ 16-6
16-9¾ 16-6
30 6-2
3
/
8
24-1
3
/
8
7-6
1
/
2
6-9
5
/
8
5-8
5
/
8
0-9
1
/
2
1-3
5
/
8
1-7
9
/
16
1-3
1
/
2
2-2
1
/
2
16-3
13
/
16
16-7 15-5
5
/
16
13-3 7-0 6-6
15
/
16
4-9
5
/
16
3-4
3
/
8
5-7 0-5
13
/
16
7-9
1
/
2
16-9¾ 16-6
20-1¾ 19-6
40 6-7
3
/
8
30-2
1
/
2
7-6
1
/
2
7-2
5
/
8
6-1
5
/
8
0-9
7
/
8
1-5
7
/
8
1-10
1
/
8
2-5 2-5 19-10
5
/
16
19-7 18-11
11
/
16
15-11
1
/
8
8-0 7-8
3
/
16
5-9
5
/
16
3-4
3
/
8
5-7 0-5
13
/
16
7-9
1
/
2
20-6¾ 20-3
20-1¾ 19-6
50 & 55 5-8
7
/
8
32-10
1
/
2
7-6
1
/
2
6-4
1
/
8
5-3
1
/
8
0-9
1
/
2
1-3
5
/
8
1-7
9
/
16
2-5 2-5 19-10
5
/
16
19-7 18-11
11
/
16
15-11
1
/
8
8-0 7-8
3
/
16
6-9
3
/
8
3-4
3
/
8
5-7 0-5
13
/
16
7-9
1
/
2
20-6¾ 20-3
20-1¾ 19-6
60 6-7
3
/
8
30-2
1
/
2
9-8 7-2
5
/
8
6-1
5
/
8
0-9
7
/
8
1-5
7
/
8
1-10
1
/
8
2-5 2-5 19-10
5
/
16
19-7 18-11
11
/
16
15-11
1
/
8
8-0 7-8
3
/
16
5-9
5
/
16
4-5
3
/
8
7-8
1
/
2
0-5
13
/
16
9-11
20-6¾ 20-3
20-1¾ 19-6
70 & 75 6-7
3
/
8
30-2
1
/
2
9-8 7-2
5
/
8
6-1
5
/
8
0-9
7
/
8
1-5
7
/
8
1-10
1
/
8
1-4 2-5 19-10
5
/
16
19-7 18-11
11
/
16
15-11
1
/
8
8-0 7-8
3
/
16
5-9
5
/
16
4-5
3
/
8
7-8
1
/
2
0-5
13
/
16
9-11
20-6¾ 20-3
Note:
High Heat
1. Dimensions shown are for gas heat units.
Low Heat
Table DD-2 Heating/Cooling Unit Dimensions (Ft. In.) SEHF, SFHF, SSHF, SLHF, SXHF

Related product manuals