EasyManua.ls Logo

Trane RTAC 150 Series - Page 25

Trane RTAC 150 Series
138 pages
Print Icon
To Next Page IconTo Next Page
To Next Page IconTo Next Page
To Previous Page IconTo Previous Page
To Previous Page IconTo Previous Page
Loading...
RTAC-SVX002A-EN 25
Installation Mechanical
Foundation
Provide rigid, non-warping mounting
pads or a concrete foundation of
sufcient strength and mass to support
the outdoor unit operating weight (i.e.,
including completed piping, and full
operating charges of refrigerant, oil and
water). Refer to Tables in the General
Information section for unit operating
weights. Once in place, the outdoor unit
must be level within 1/ 4" (6 mm) over its
length and width.
The Trane Company is not responsible
for equipment problems resulting from
an improperly designed or constructed
foundation.
NOTE: To allow for cleaning under the
condensing coil, it is recommended that
an opening be left between the unit base
and the concrete pad.
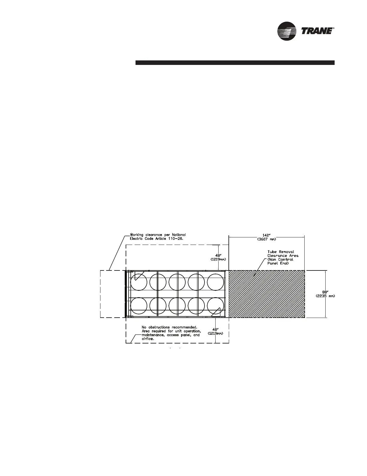
Clearances
Provide enough space around the
outdoor unit to allow the installation and
maintenance personnel unrestricted
access to all service points. Refer to
submittal drawings
for the unit dimensions. A minimum
of 4 feet (1.2 m) is recommended
for compressor service. Provide
sufcient clearance for the opening of
control panel doors. Refer to Figure
18 through Figure 19 for minimum
clearances. In all cases, local codes
which require additional clearances
will take precedence over these
recommendations.
Fig. III-05 – Recommended Unit Clearances 15-foot bases

Related product manuals