EasyManua.ls Logo

Trane RTAC 350 Series - Wiring Diagram - Field Layout (All); Fig. XII-23 - Field Layout, all Diagram

Trane RTAC 350 Series
138 pages
Print Icon
To Next Page IconTo Next Page
To Next Page IconTo Next Page
To Previous Page IconTo Previous Page
To Previous Page IconTo Previous Page
Loading...
RTAC-SVX002A-EN 136
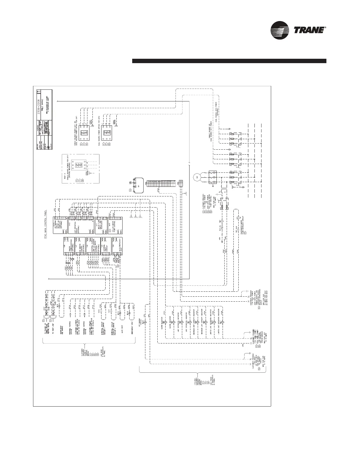
Wiring Diagram
Fig. XII-23 – Field Layout, all

Related product manuals