EasyManua.ls Logo

Trane RTHB - Page 37

Trane RTHB
48 pages
Print Icon
To Next Page IconTo Next Page
To Next Page IconTo Next Page
To Previous Page IconTo Previous Page
To Previous Page IconTo Previous Page
Loading...
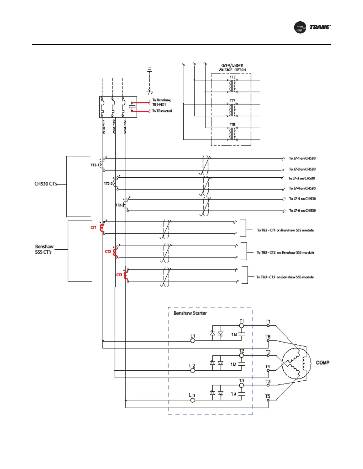
Figure 36. Power wiring (new wiring bold/highlighted in red) — RTHD
RTHD Units with IT Starter
RLC-SVN005B-EN 37

Related product manuals