EasyManua.ls Logo

Trane RTHD - Page 37

Trane RTHD
48 pages
Print Icon
To Next Page IconTo Next Page
To Next Page IconTo Next Page
To Previous Page IconTo Previous Page
To Previous Page IconTo Previous Page
Loading...
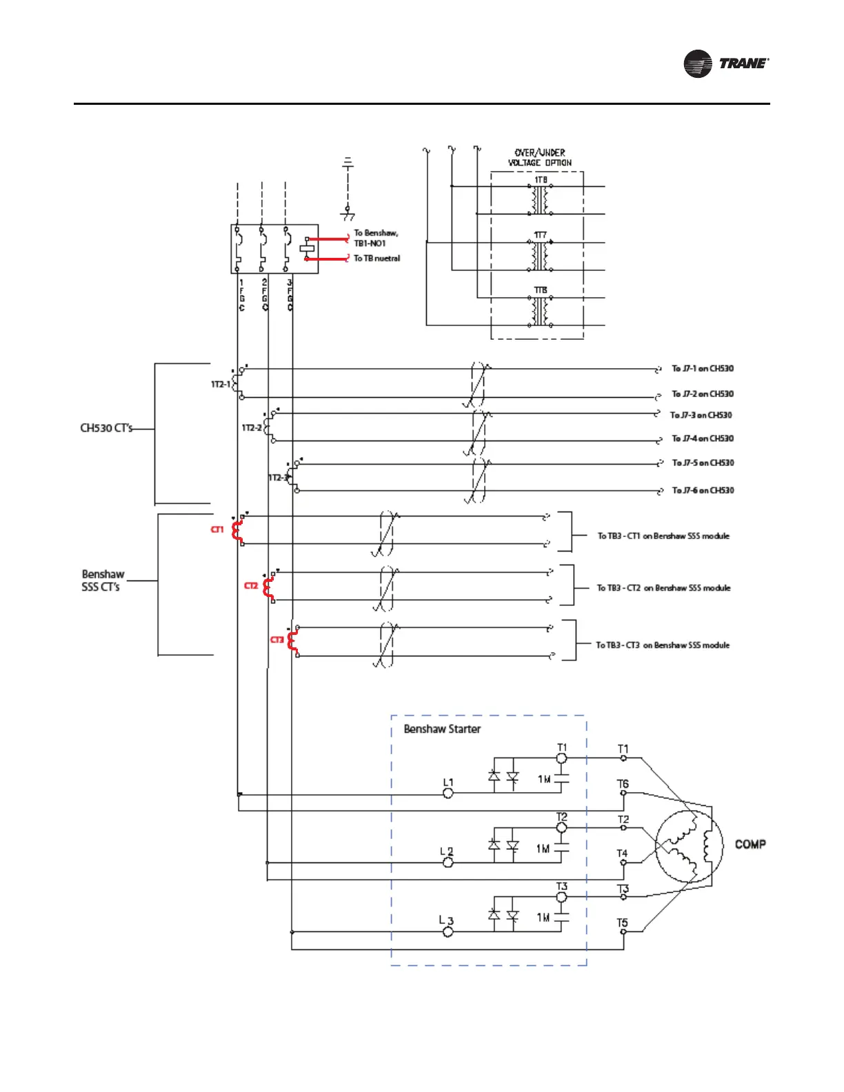
Figure 36. Power wiring (new wiring bold/highlighted in red) — RTHD
RTHD Units with IT Starter
RLC-SVN005B-EN 37

Other manuals for Trane RTHD

Related product manuals