EasyManua.ls Logo

Trane TAMXA0A24V21DA - Outline Drawing

Trane TAMXA0A24V21DA
48 pages
Print Icon
To Next Page IconTo Next Page
To Next Page IconTo Next Page
To Previous Page IconTo Previous Page
To Previous Page IconTo Previous Page
Loading...
18-GJ89D1-1D-EN
41
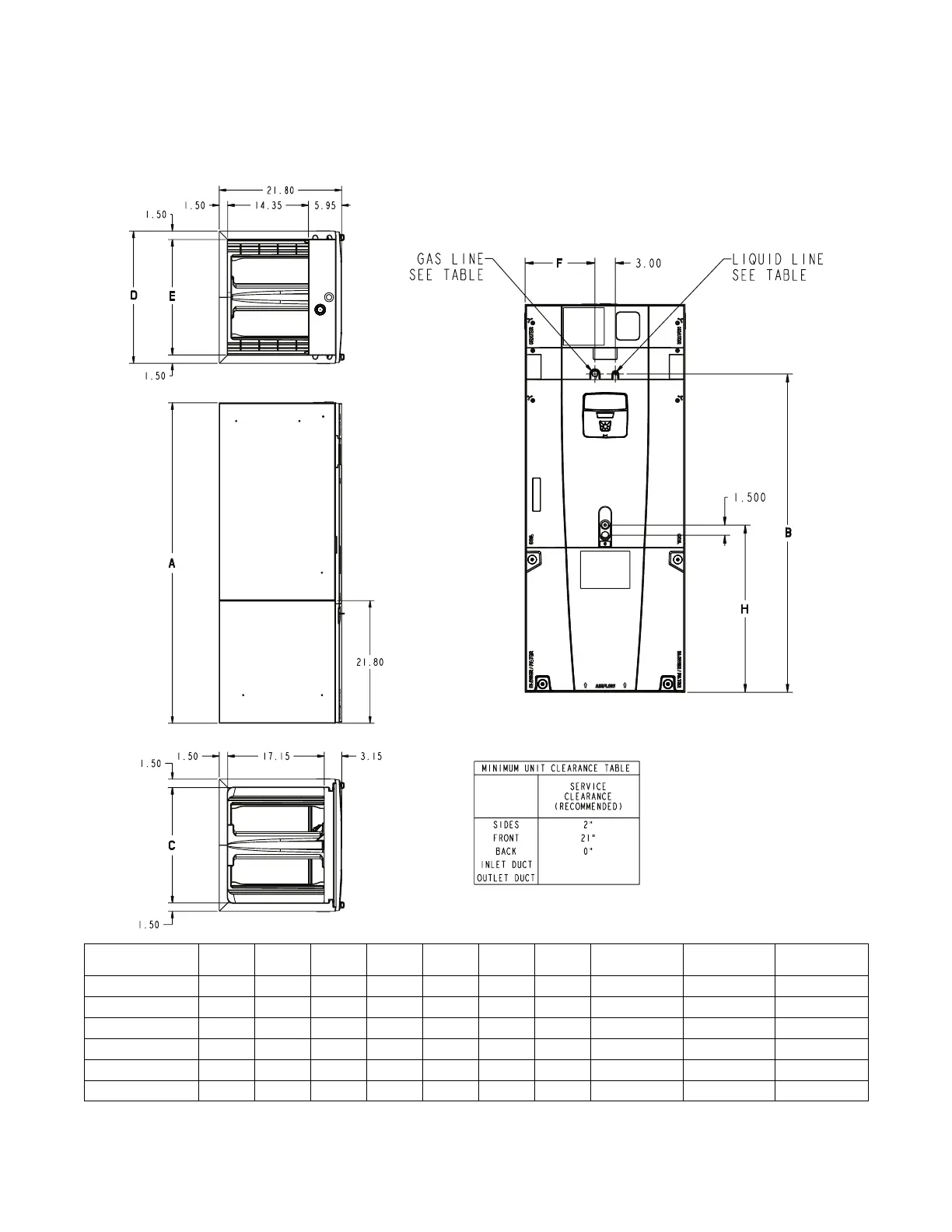
Outline Drawing
NOTE: THIS UNIT IS APPROVED FOR INSTALLATION
CLEARANCES TO COMBUSTIBLE MATERIAL
AS STATED ON THE UNIT RATING NAMEPLATE
Model Number A B C D E F H
FLOW
CONTROL
GAS LINE
BRAZE
LIQ LINE
BRAZE
TAMXA0A24H21DA 49.9 39.6 14.5 17.5 14.5 7.3 24.4 EEV
3/4 3/8
TAMXA0B30H31DA 55.7 45.5 18.4 21.3 18.4 9.2 24.8 EEV
3/4 3/8
TAMXA0C36H31DA 56.9 46.7 20.5 23.5 20.5 10.3 24.2 EEV
7/8 3/8
TAMXA0C42H41DA 56.9 46.7 20.5 23.5 20.5 10.3 24.5 EEV
7/8 3/8
TAMXA0C48H41DA 61.7 51.5 20.5 23.5 20.5 10.3 24.9 EEV
7/8 3/8
TAMXA0C60H51DA 61.7 51.5 20.5 23.5 20.5 10.3 24.9 EEV
7/8 3/8

Related product manuals