EasyManua.ls Logo

Trane TCONT302 - Or 2 Stage Heat; Cool Pkg Unit with VSB; HP Pkg Unit with Non-Variable SB

Trane TCONT302
20 pages
Print Icon
To Next Page IconTo Next Page
To Next Page IconTo Next Page
To Previous Page IconTo Previous Page
To Previous Page IconTo Previous Page
Loading...
Part No. 37-7760003 09-2018 18-HD48D1-1A-EN 11
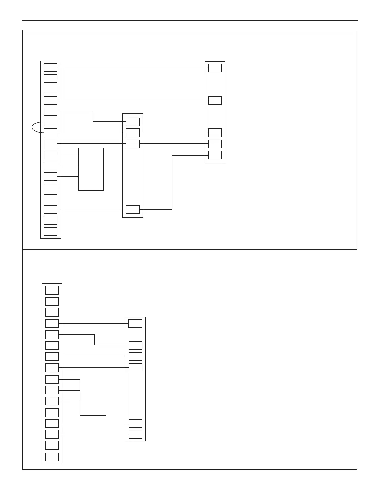
Trane XR302 and XR303 Touchscreen Thermostat
G
R
B
W
O
Y/Y1
R
B
O/B
L
Y2
Y
G
Rc
Rh
C
+
S
-
HM
W2
W/E
6
DHM
X2
Optional
remote
indoor or
outdoor
wired
sensor
FOOTNOTES:
1) A/TCONT302 {does not include humidier(HM) and dehumidier(DHM) terminals}
2) Wire third party condensate overow switches between Y of the thermostat and Y1
of the airow control board
3) X2 is required to energize aux heat during defrost
4) Factory installed jumper
Heat Pump with GAF2-S
Thermostat
Indoor Unit
Outdoor Unit
* Caution: Do not run Outdoor/Remote sensor wires
in the same bundle with HVAC wires. Also, keep
away from high voltage wiring to avoid interference.
1
1
2
4
3
G
R
B
W1
O/B
L
Y2
Y
G
Rc
Rh
C
+
S
-
HM
W2
W/E
6
DHM
Optional
remote
indoor or
outdoor
wired
sensor
FOOTNOTES:
1) A/TCONT302 {does not include humidier(HM) and dehumidier(DHM) terminals}
Package Heat Cool Unit
ThermostatThermostat
* Caution: Do not run Outdoor/Remote sensor wires
in the same bundle with HVAC wires. Also, keep
away from high voltage wiring to avoid interference.
Y
W2

Related product manuals