EasyManua.ls Logo

Trane TUH1D100A9601A - DH1 Outline Drawing, Upflow;Horizontal

Trane TUH1D100A9601A
40 pages
Print Icon
To Next Page IconTo Next Page
To Next Page IconTo Next Page
To Previous Page IconTo Previous Page
To Previous Page IconTo Previous Page
Loading...
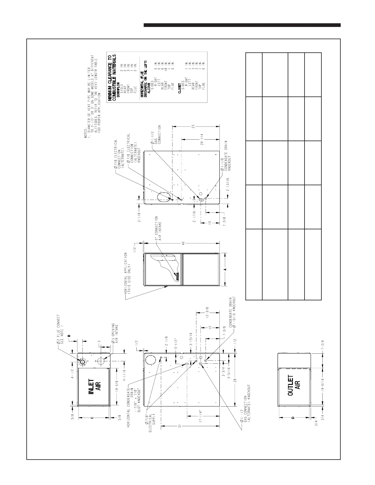
6 18-CD29D1-11
Installer’s Guide
From Dwg. C341885 Rev. 7
*DH1 OUTLINE DRAWING, DOWNFLOW / HORIZONTAL
(ALL DIMENSIONS ARE IN INCHES)
MODEL DIM "A" DIM"B" DIM "C" DIM "D"
*DH1B040A9241
*DH1B065A9421
17-1/2" 2-1/4" 16-1/4" 16"
*DH1C085A9481 21" 2-1/2" 19-3/4" 19-1/2"
*DH1D110A9601 24-1/2" 2-15/16" 23-1/4" 23"
* May be "A" or "T"
Part numbers can end in A-Z

Table of Contents

Related product manuals