EasyManua.ls Logo

Trane *UD2B060A9V3VB - Page 5

Trane *UD2B060A9V3VB
24 pages
Print Icon
To Next Page IconTo Next Page
To Next Page IconTo Next Page
To Previous Page IconTo Previous Page
To Previous Page IconTo Previous Page
Loading...
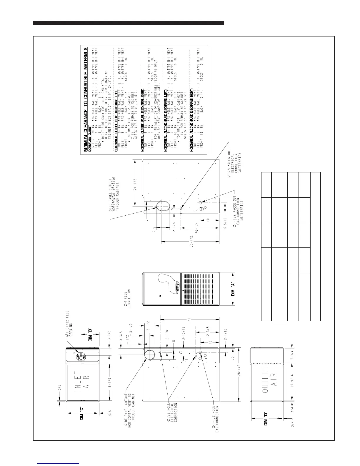
18-CD31D1-5 5
Installer’s Guide
From Dwg. 21C341700 Sh. 1 Rev. 0
*DD2-9V OUTLINE DRAWING
(ALL DIMENSIONS ARE IN INCHES)
MODEL DIM "A" DIM "B" DIM "C" DIM "D"
*DD2B060A9V3VA
*DD2B080A9V3VA
17-1/2" 9-5/8" 16-1/4" 16"
*DD2C100A9V5VA 21" 13-1/16" 19-3/4" 19-1/2"
*DD2D120A9V5VA 24-1/2" 15-5/16" 23-1/4" 23"
* - The First Letter May Be "A" or "T"

Related product manuals