EasyManua.ls Logo

Trane YSJ072A - Piping Diagrams

Trane YSJ072A
64 pages
Print Icon
To Next Page IconTo Next Page
To Next Page IconTo Next Page
To Previous Page IconTo Previous Page
To Previous Page IconTo Previous Page
Loading...
RT-SVX071A-EN
59
Piping Diagrams
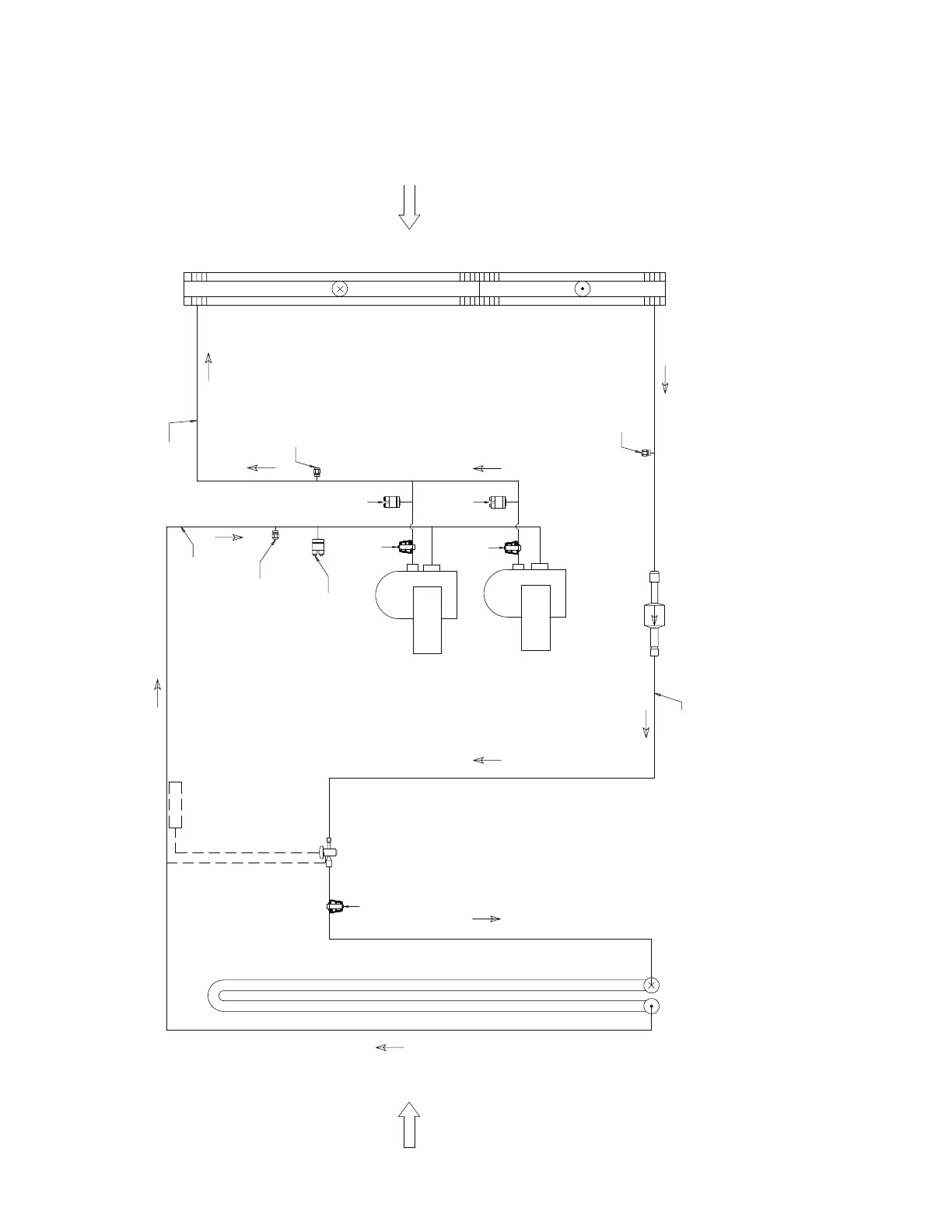
Figure 63. Piping diagram 6 to 12.5 tons standard efficiency (YSJ072–150)
INDOOR COIL
AIR
SERVICE
VALVE
SU
C
TI
O
N
LINE
LIQUID LINE
FITER DRIER
TXV
TXV BULB
EQUALIZING LINE
SERVICE
VALVE
AIR
OUTDOOR COIL
LOW
PRESSURE
CONTROL
DISCHARGE
LINE
COMPRESSOR
1A
S
D
COMPRESSOR
1B
DISCHARGE
LINE
THERMOSTAT
FROSTAT
HIGH
PRESSURE
CONTROL
D
DISCHARGE
LINE
THERMOSTAT
HIGH
PRESSURE
CONTROL
S
SERVICE
VALVE

Related product manuals