EasyManua.ls Logo

Trane YSJ072A - Page 62

Trane YSJ072A
64 pages
Print Icon
To Next Page IconTo Next Page
To Next Page IconTo Next Page
To Previous Page IconTo Previous Page
To Previous Page IconTo Previous Page
Loading...
62
RT-SVX071A-EN
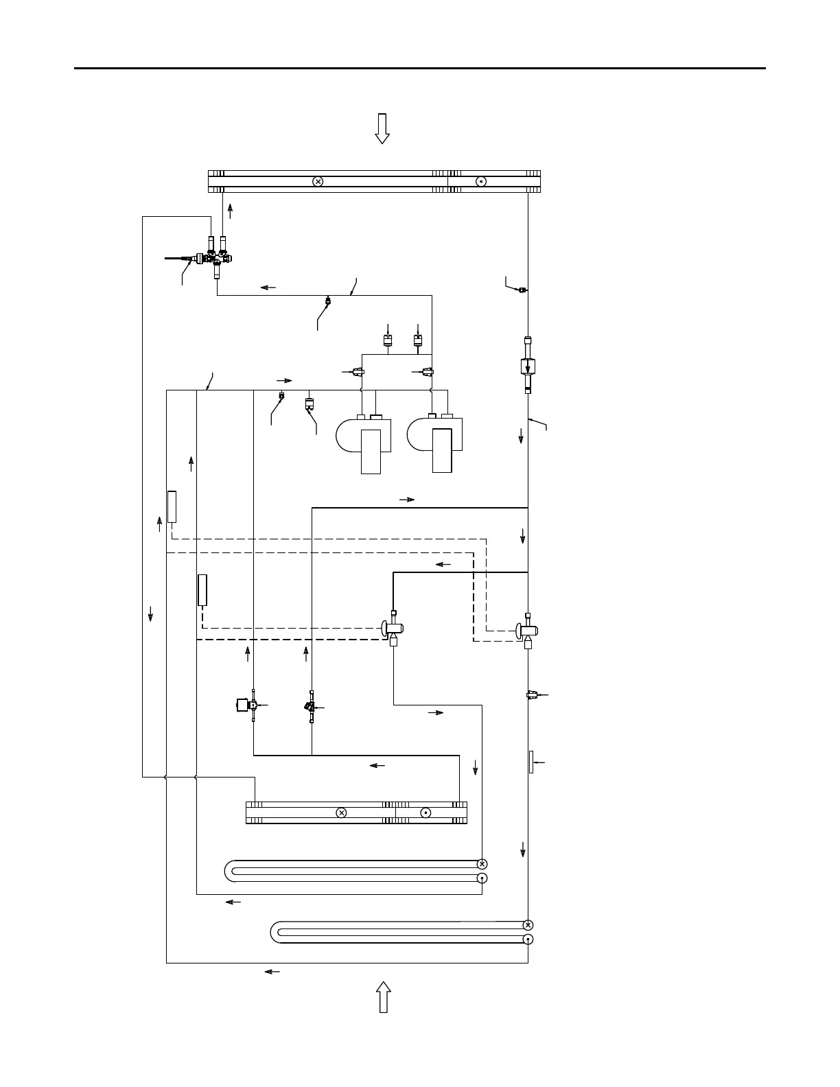
Figure 66. Piping diagram 15 to 25 tons standard efficiency hot gas reheat (YSJ180–300)
COMPRESSOR
1A
S
D
COMPRESSOR
1B
S
D
SERVICE
VALVE
NO
ITCUS
LINE
LIQUID LINE
TXV #1
EQUALIZING LINE
SERVICE
VALVE
OUTDOOR COIL
LOW
PRESSURE
CONTROL
DISCHARGE
LINE
THERMOSTAT
HIGH
PRESSURE
CONTROL
AIR
AIR
INDOOR COIL #1
INDOOR COIL #2
TXV BULB #2
TXV BULB #1
TXV #2
EQUALIZING LINE
DISCHARGE
LINE
THERMOSTAT
HIGH
PRESSURE
CONTROL
SERVICE
VALVE
REHEAT
COIL
DISCHARGE LINE
CHECK
VALVE
SOLENOID
VALVE
BLEED TUBE
MTW-9S VALVE
B
A
FROSTAT
THERMISTOR
FILTER DRIER
Piping Diagrams

Related product manuals