EasyManua.ls Logo

Trane YZJ150 - Piping Diagrams - Hot Gas Reheat; Hot Gas Reheat Piping (12.5-15 Tons)

Trane YZJ150
60 pages
Print Icon
To Next Page IconTo Next Page
To Next Page IconTo Next Page
To Previous Page IconTo Previous Page
To Previous Page IconTo Previous Page
Loading...
50
RT-SVX077B-EN
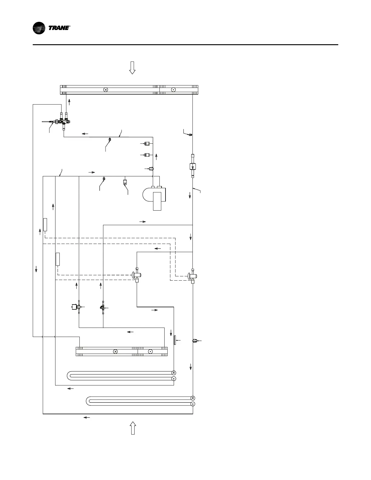
Figure 35. Piping diagram – 12.5 to 15 tons ultra high efficiency - hot gas reheat (YZJ150–180)
COMPRESSOR
1A
S
D
SERVICE
VALVE
SU
C
TI
ON
LINE
LIQUID LINE
FILTER DRIER
TXV #1
EQUALIZING LINE
SERVICE
VALVE
OUTDOOR COIL
LOW
PRESSURE
CONTROL
DISCHARGE
LINE
THERMOSTAT
AIR
AIR
INDOOR COIL #1
INDOOR COIL #2
TXV BULB #2
TXV BULB #1
TXV #2
EQUALIZING LINE
SERVICE
VALVE
REHEAT
COIL
DISCHARGE LINE
CHECK
VALVE
SOLENOID
VALVE
BLEED TUBE
MTW-9S VALVE
B
A
FROSTAT
THERMISTOR
HIGH
PRESSURE
CONTROL
HIGH
PRESSURE
CONTROL
Piping Diagrams

Table of Contents

Related product manuals