EasyManua.ls Logo

TREND IQ422 - Page 7

TREND IQ422
12 pages
Print Icon
To Next Page IconTo Next Page
To Next Page IconTo Next Page
To Previous Page IconTo Previous Page
To Previous Page IconTo Previous Page
Loading...
IQ422, IQ4NC/00, IQ4NC/12 Controllers Installation Instructions - Mounting TG201264 Issue 12, 04-Feb-2020. Applies to v4.30 7
Installation Instructions - Mounting IQ422, IQ4NC/00, IQ4NC/12
11
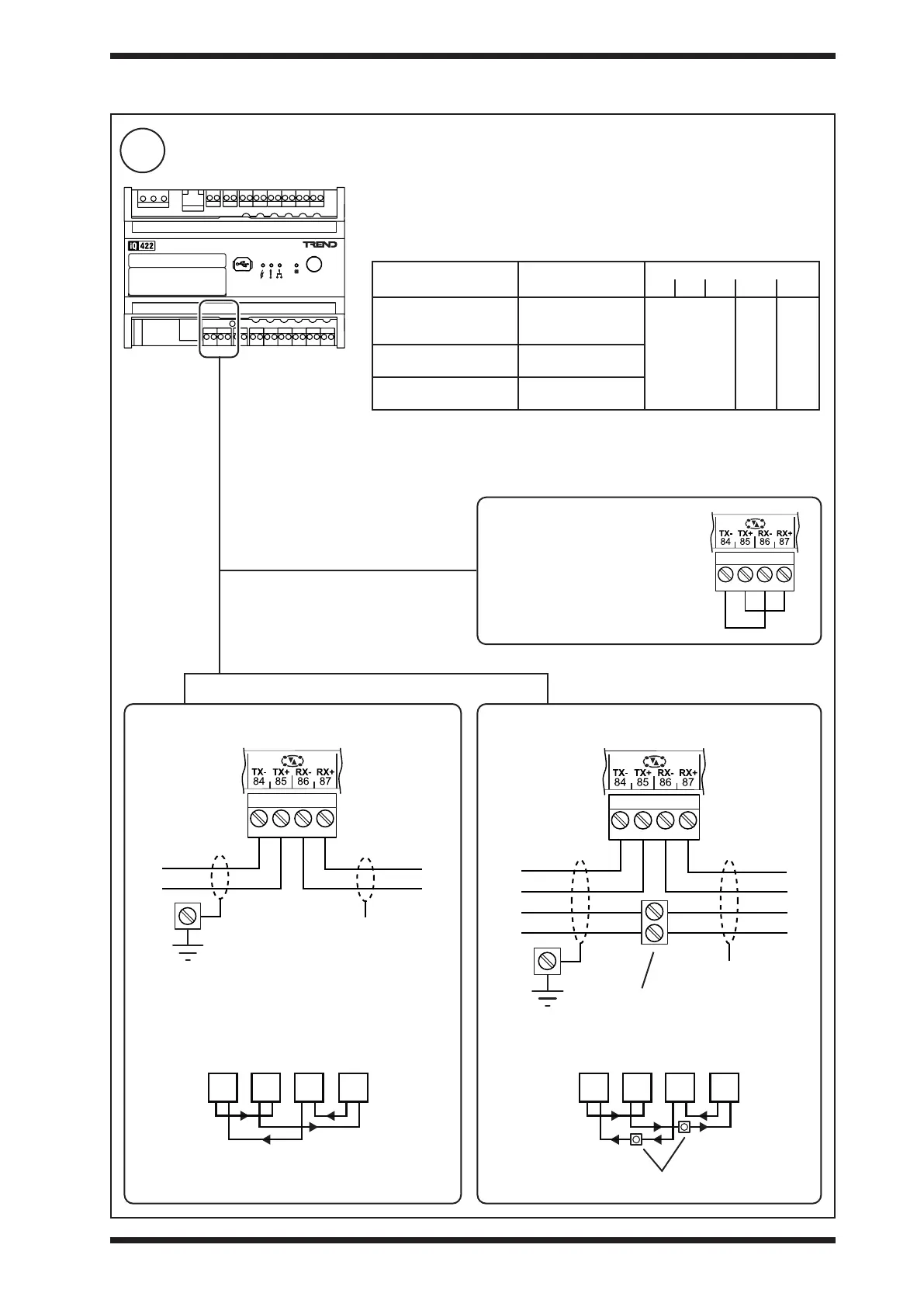
Connect Trend Current Loop Network (if required - applicable to IQ4NC or IQ422/LAN only)
3 INSTALLATION (continued)
TR
TR
TRTR
panel/enclosure
ground
T
R
R
X
T
R
R
T
T
If the current loop Lan is enabled
(default), the Lan communications
will not operate without an intact
network. If a network is not tted a
loop back must be tted as shown.
Not connected
2 wire system 4 wire system
TR
TR
TRTR
panel/enclosure
ground
T
R
R
X
T
Terminal size: 0.14 to 2.5 mm
2
(22 to 12 AWG).
Terminal screw torque: 0.45 to 0.62 Nm (4 to 5.5 lb.in).
Maximum cable length depends on cable type, see table below:
Cable Type
Baud Rate
1k2 4k8 9k6 19k2 38k4
Trend TP/2/2/22/HF/200
Belden 8723
Shielded twisted pair
2 pairs (4
conductors)
1000 m
(1090 yds)
700m
(765
yds)
350m
(380
yds)
Trend TP/1/1/22/HF/200
Belden 8761
Shielded twisted pair
1 pair (2 conductors)
Belden 9182
Belden 9207
Twinaxial (2
conductors)
Note: Adjacent devices may specify dierent maximum cable lengths and baud
rates. The shortest cable length (for the chosen baud rate) applies when connecting
to the IQ422, IQ4NC/00, IQ4NC/12 current loop.
Additional terminals
additional terminals

Related product manuals