EasyManua.ls Logo

Triumph TR3 - Wiring Diagram for Overdrive Unit

Triumph TR3
56 pages
Print Icon
To Next Page IconTo Next Page
To Next Page IconTo Next Page
To Previous Page IconTo Previous Page
To Previous Page IconTo Previous Page
Loading...
ELECTRICAL SYSTEM
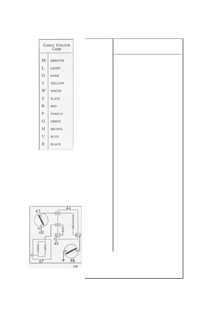
Fig. 44.
Wiring Diagram
for
Overdrive Unit.
KEY TO COMPONENTS
Fig. 43.
I
STOP/TAIL LAMP
2
FLASHER LAMP
3
NO. PLATE LAMP
4
FLASHER LAMP
5
STOP/TAIL LAMP
6
SPEEDOMETER
7
REVOLUTION COUNTER
8
PANEL LAMPS
9
HIGH BEAM INDICATOR LAMP
10
IGNITION COIL
II
DISTRIBUTOR
12
PETROL TANK UNIT
13
FUSE UNIT
14
STOP LAMP SWITCH
15
SIDE (PARKING) AND FLASHER LAMP
16
HEADLAMP
17 HORNS
18
DIPPER SWITCH
19
HORN PUSH AND DIRECTION INDICATOR
SWITCH
20
HEADLAMP
21
SIDE (PARKING) AND FLASHER LAMP
22
FLASHER UNIT
23
CONTROL BOX
24
SOLENOID STARTER SWITCH
25
STARTER MOTOR
26 1
2V. BATTERY
27
GENERATOR
28 IGNITION SWITCH
29 STARTER SWITCH
30
AMMETER
31
PANEL LAMP
32
TEMPERATURE GAUGE
33
WINDSCREEN WIPER MOTOR
34
SCREEN WIPER SWITCH
35
IGNITION WARNING LAMP
36
FLASHER WARNING LAMP
37
PANEL LIGHTING SWITCH
38
PANEL LAMP
39
LIGHTING SWITCH
40 FUEL GAUGE
41
FUSE (FITTED U.S.A. ONLY)
4 2
OIL PRESSURE GAUGE
OVERDRIVE ONLY :
Fig. 44.
43
STEERING COLUMN SWITCH
44
RELAY UNIT
45
TO A ON CONTROL BOX
46
GEARBOX SWITCH
47
OVERDRIVE SOLENOID
48
TO IGNITION VIA A3 ON FUSE UNIT
4 9

Table of Contents

Other manuals for Triumph TR3

Related product manuals