EasyManua.ls Logo

Trotec TTR 56 E - Technical Specifications and Schematics; Technical Specifications; Circuit Diagram

Trotec TTR 56 E
20 pages
Print Icon
To Next Page IconTo Next Page
To Next Page IconTo Next Page
To Previous Page IconTo Previous Page
To Previous Page IconTo Previous Page
Loading...
4 Operating Manual – Dehumidifier TTR 56 E EN
Technical data
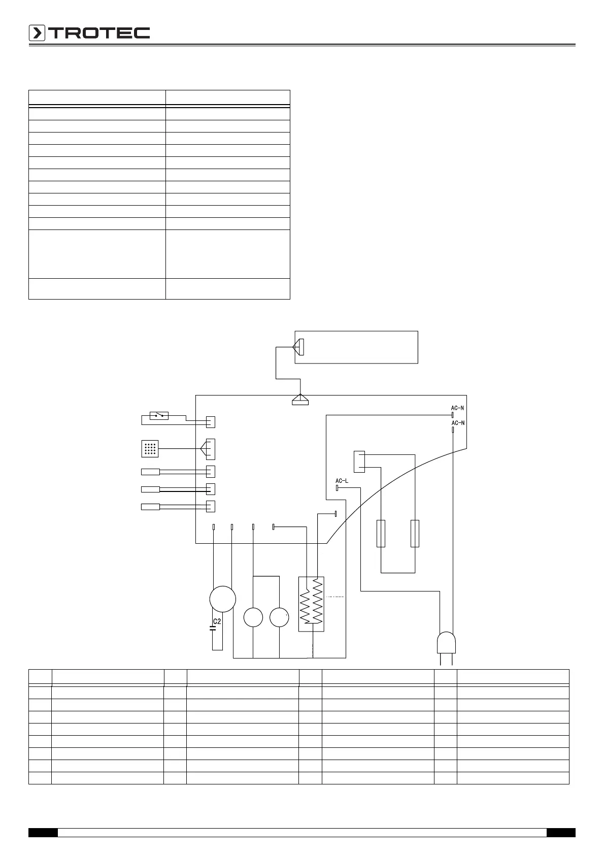
Circuit diagram
Parameter
Value
Dehumidifying capacity, max. 9 l / 24 h
Operating temperature 1 to 32 °C
Working range for relative humidity 35 to 95 %
Air flow rate, max. 200 m³/h
Electric connection 230 V / 50 Hz
Power input, max. 780 W
Power input, min. 470 W
Condensation tank 3.5 l
Weight 8.5 kg
Dimensions (height x depth x width) 525 x 200 x 445 mm
Minimum distance to walls or other
objects
A: Top: 90 cm
B: Rear: 40 cm
C: Sides: 40 cm
D: Front: 50 cm
Sound pressure level LpA (1 m;
complies with DIN 45635-01-KL3)
45 dB(A)
910
8
11
12
13
14
15
16
17
18
19
21
21
22
2324
25
26
27
28
29
30
31
37
32
33
34
35
36
No. Designation No. Designation No. Designation No. Designation
8 Control Panel 16 H-Heat 24 L-Fan 32 Sensor 1
9 Fuse 2 17 Red 25 Yellow 33 Sensor 2
10 Fuse 1 18 Motor C 26 Motor A 34 Sensor 3
11 L-Heat 19 Black 27 Black 35 Sensor 4
12 Black 20 Black 28 Brown 36 Magnetswitch
13 Heater 21 Motor B 29 Red 37 Power PCB
14 Blue 22 Red 30 White
15 Red 23 Motor 31 H-Fan

Related product manuals