EasyManua.ls Logo

Tulp B-Fire 50 - Page 32

Default Icon
36 pages
Print Icon
To Next Page IconTo Next Page
To Next Page IconTo Next Page
To Previous Page IconTo Previous Page
To Previous Page IconTo Previous Page
Loading...
Manual Tulp gas fires EN
P. 32
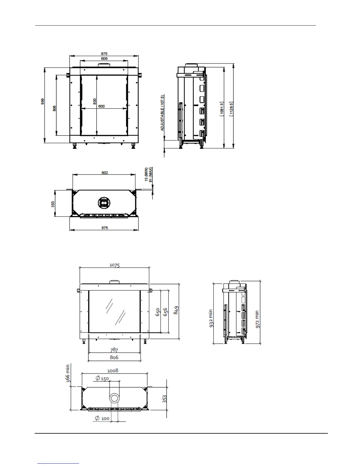
5.4.12 B-fire 60
5.4.13 B-fire 80