EasyManua.ls Logo

Unitronics V200-18-E3XBW - Page 9

Unitronics V200-18-E3XBW
16 pages
Print Icon
To Next Page IconTo Next Page
To Next Page IconTo Next Page
To Previous Page IconTo Previous Page
To Previous Page IconTo Previous Page
Loading...
V200-18-E3XBW Snap-in I/O Module
Unitronics 9
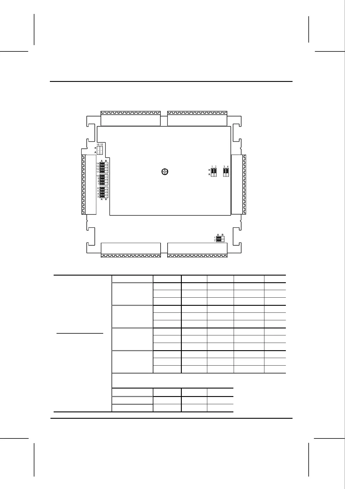
Select the desired function by changing the jumper settings according to the figure and tables shown below.
Analog Input Jumpers
Jumper # Voltage* Current T/C or mV PT100
14 A B B A
13 A B B A
Analog input 3
12 A A B B
11 A B B A
10 A B B A
Analog input 2
9 A A B B
8 A B B A
7 A B B A
Analog input 1
6 A A B B
5 A B B A
4 A B B A
Bottom PCB board
Analog input 0
3 A A B B
Digital Output Jumpers
Jumper # PNP* NPN
Digital Output 0
1 A B
Note that Jumpers #15 &
16 are not used
Digital Output 1
2 A B

Related product manuals