EasyManua.ls Logo

Universal Space DUO DRIVE - Motorcycle Dynamic Assembly

Universal Space DUO DRIVE
41 pages
Print Icon
To Next Page IconTo Next Page
To Next Page IconTo Next Page
To Previous Page IconTo Previous Page
To Previous Page IconTo Previous Page
Loading...
 DUO DRIVE V1.02
25
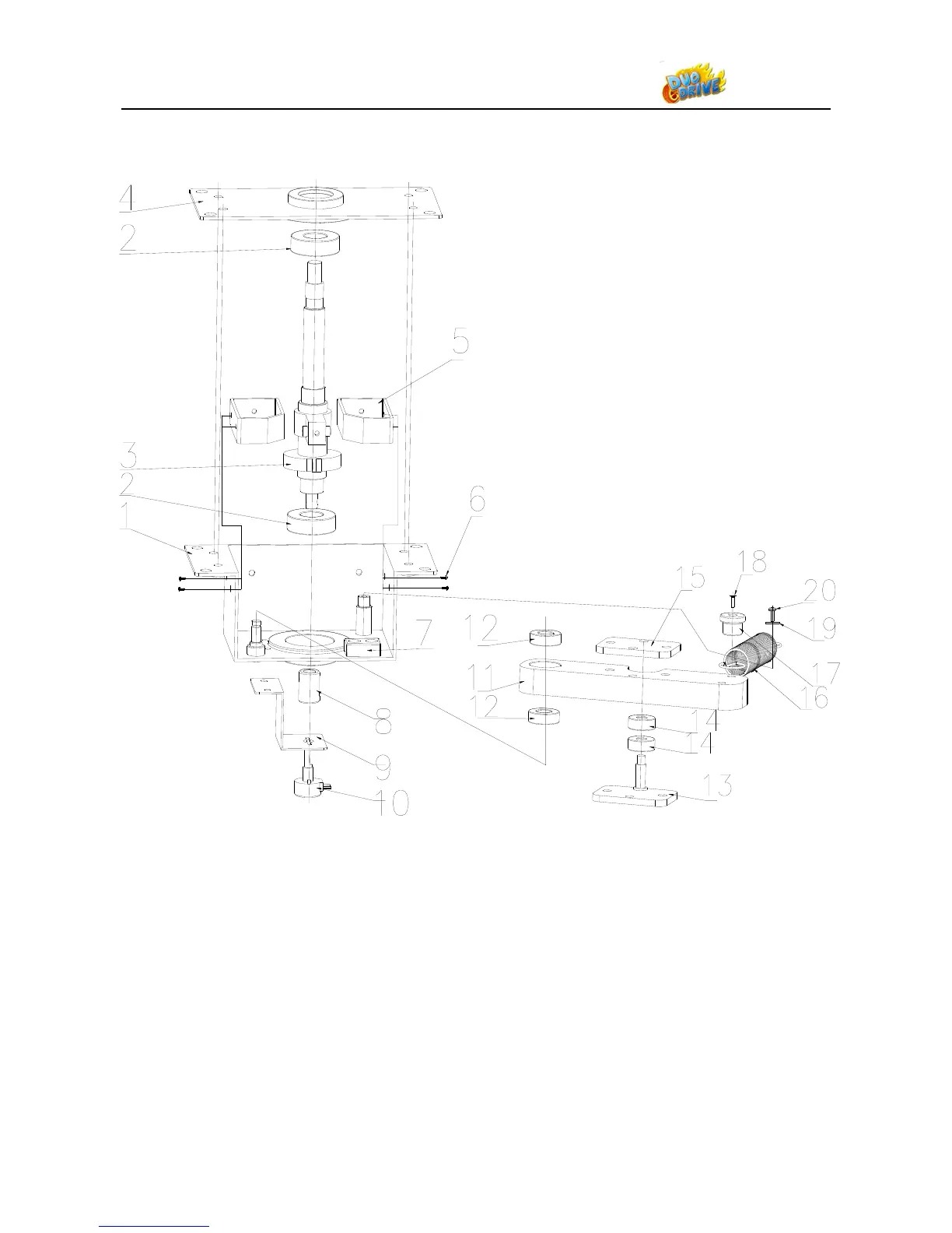
9.7 Motorcycle dynamic Assembly

Related product manuals