EasyManua.ls Logo

Vaillant ecoTEC plus 418 - Page 26

Vaillant ecoTEC plus 418
112 pages
Print Icon
To Next Page IconTo Next Page
To Next Page IconTo Next Page
To Previous Page IconTo Previous Page
To Previous Page IconTo Previous Page
Loading...
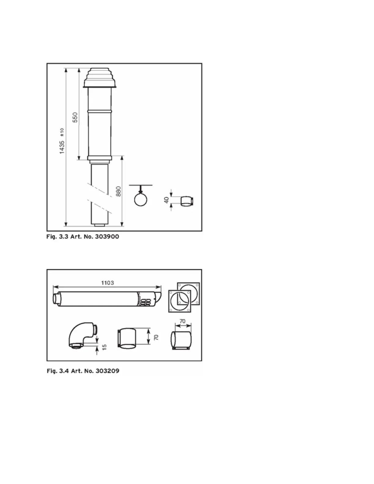
Fig. 3.3 Art. No. 303900
Fig. 3.4 Art. No. 303209
Fig. 3.5 Vertical Flue System Art. No. 303200

Related product manuals