EasyManua.ls Logo

Valtra 6250 - Page 220

Valtra 6250
1361 pages
Print Icon
To Next Page IconTo Next Page
To Next Page IconTo Next Page
To Previous Page IconTo Previous Page
To Previous Page IconTo Previous Page
Loading...
213
Model Code Page
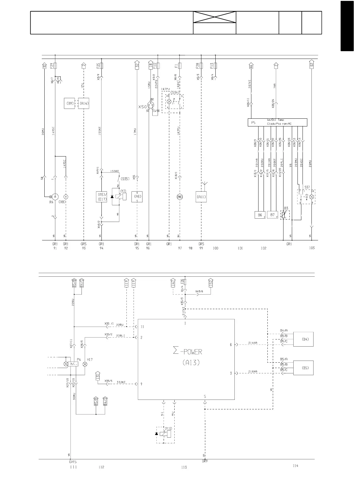
31. Tractor electrical system
1. 10. 1999
6250--8950 310 63
ACV V
ACV VI

Table of Contents

Related product manuals