EasyManua.ls Logo

Vapac LE18 - Master;Slave System

Default Icon
46 pages
Print Icon
To Next Page IconTo Next Page
To Next Page IconTo Next Page
To Previous Page IconTo Previous Page
To Previous Page IconTo Previous Page
Loading...
21
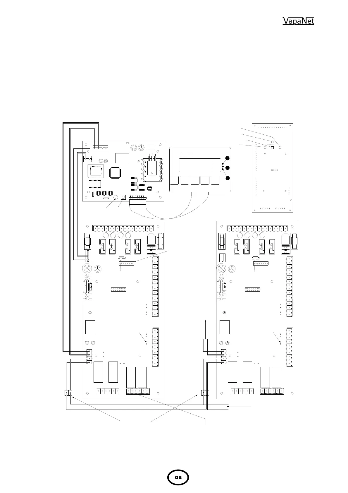
1.6.8 Master/Slave System
NB. The total cable length of the network (using the cable recommended by V.H.C.L.
Our part
number 8040251) is 500 m and it should be assumed that there is 1 m of cable in each unit of the
“system” (including the “master”).
For larger duties, VAPANET “Electrode boiler” units can be interconnected and arranged to operate from one proportional signal as a
Master/Slave system. The system allows up to 10 cylinders to be linked in this way. The slave units will all be “on / off” units. The master
unit, to which the proportional signal is connected, can be “on / off” but will preferably be a “proportional” unit.
To “configure” a system, ensure that the control signal is zero [disconnect the control signal, or switch the units off at the front panel switch].
Press and hold the service pin on the master control PCB, until the user LED’s flash amber, release and check that the LEDs flash
red/amber/green, if not repeat the procedure. Then press the service pin (network button) on each of the slave control PCB’s in the order
that they are required to operate, the slave user LED1 will flash Green/amber until it is configured, once the light goes out [or flashes
red/off], proceed to the next slave. If units of different capacity are used, ensure that the master is equal to or greater than the capacity of
the slaves, and that the largest capacity slaves come on before the smaller capacity units]. Once this process is complete, confirm the fact
by pressing the service pin on the master PCB until user LED2 goes green [this step is not necessary if all nine slave cylinders are
configured].
xxxxxx xxxxxx
xxxxxxxxxxxxxxxxxxxxxxxxx
xxxxxxxxxxxxxxxxxxxxxxxxx
xxxxxxxxxxxxxxxxxxxxxxxxx
Esc
Vapac
J2
Vapac part no 1150631
CR1
Net
J1
Vapac PART No. 1150630
16
CR5
1
NetCR7
J6
J5
CR6
1
6
6
10
CR3
16
J1
J2
J3
1
F2
CR1
1
F1
CR2
J4
18
CR4
1
16
Vapac PART No. 1150630
16
CR6
1
NetCR7
J6
CR5
1
6
6
10
CR3
16
J1
J2
J3
1
F2
CR1
1
F1
CR2
J4
18
CR4
1
16
J2
40K 48K
J5
V
0V
CR4
CR12
CR2
A B A B
Customers terminals within unit
located on low voltage rail
"Slave" unit with display.
PCB for "Master" or
current only.
signal is mA
Link if control
J1 see section 1.9.1
Network Coms,
LED
configuration
resistor
UCP1
Network
Button
9/24V ac Supply
Terminal 543 - Unit Alarm (normally closed)
Terminal 544 - Unit Alarm (normally open)
J1 see section 1.9.1
Not required forNot required for
J1 see section 1.9.1
PCB for "Slave 1" to
"Slave 9" units.
slave unit.slave unit.
Terminal 542 - Unit Alarm (Common)
Terminal 545 - Unit Run (Common)
Terminal 546 - Unit Run (normally closed)
Terminal 547 - Unit Run (normally open)
CR6 gives the following remote indications
as Volt-free contacts:
Remote Indications
Connection to
Display if fitted
components.
other network
slave units 2 to 9 or
Network Expansion to
configuration
UCP1
resistor
FRONT VIEW OF 1150630 BOARD
on the master unit.
plugged into CR4
1150634 which is
configuration board
resistor is fitted on
UCP1 configuration
with a display then
If unit is not fitted
Display & Keypad
(Optional)
Network LED
Network Button
USER LED 1
USER LED 2

Related product manuals