EasyManua.ls Logo

Vapac LE60-110 - 1 Installation; 1.1 Vapac LE Unit Dimensions

Default Icon
46 pages
Print Icon
To Next Page IconTo Next Page
To Next Page IconTo Next Page
To Previous Page IconTo Previous Page
To Previous Page IconTo Previous Page
Loading...
4
675.0
430.0
6.0265.055.0
6.0
140.0
285.0
74.0444.0
172.0203.0
204.0
70.0
203.0172.0
F
D
120.0
62.0
50.0
1.0 Installation.
Do’s
Do mount the unit as close to the steam distribution
pipe(s) as possible.
Do mount the unit at a height convenient for reading the
display window.
Do ensure adequate side ventilation (min 80 mm).
Do ensure adequate service access to the front of the unit
(min 1000 mm).
Do ensure adequate service access below the unit (min
1000 mm).
Do ensure that the holes in the rear top panel remain
unobstructed to allow a free flow of air see fig 1.
Do use the marking on the side of the carton as a template
to mark the mounting hole positions.
Do remove the cylinder, if necessary, to access the
mounting holes in the back of the steam section.
Do use M6 projecting type wall bolts or equivalent to
mount the unit in position.
Do mount units with RDU’s so that steam pipe discharge is
above head height.
Do leave minimum gap between the top of an RDU and
the ceiling as per table in fig 2.
Don’ts
Don’t mount the unit close to sources of strong electro-
magnetic emissions e.g. variable speed lift motor
drives, kVa transformers etc.
Don’t mount the unit in an unventilated enclosure.
Don’t mount in a position requiring ladder access to the
unit.
Don’t mount the unit behind a false ceiling or other
situation where an unusual malfunction (e.g. water
leak) would cause damage.
Don’t mount the unit in an area which will be hosed down.
Don’t install the unit where the ambient temperature can
exceed 35
o
C; or fall below 5
o
C (Unless frost protection
kit fitted).
Don’t mount the unit inside a cold-room or other place
where temperature and humidity conditions can cause
condensation on electrical components.
Don’t mount the unit where the sound of a contactor
opening/closing and water flow in a pipe would be
unacceptable e.g. libraries, private apartments, etc.
Don’t position an RDU to discharge directly over
expensive equipment, desks or stored materials
.
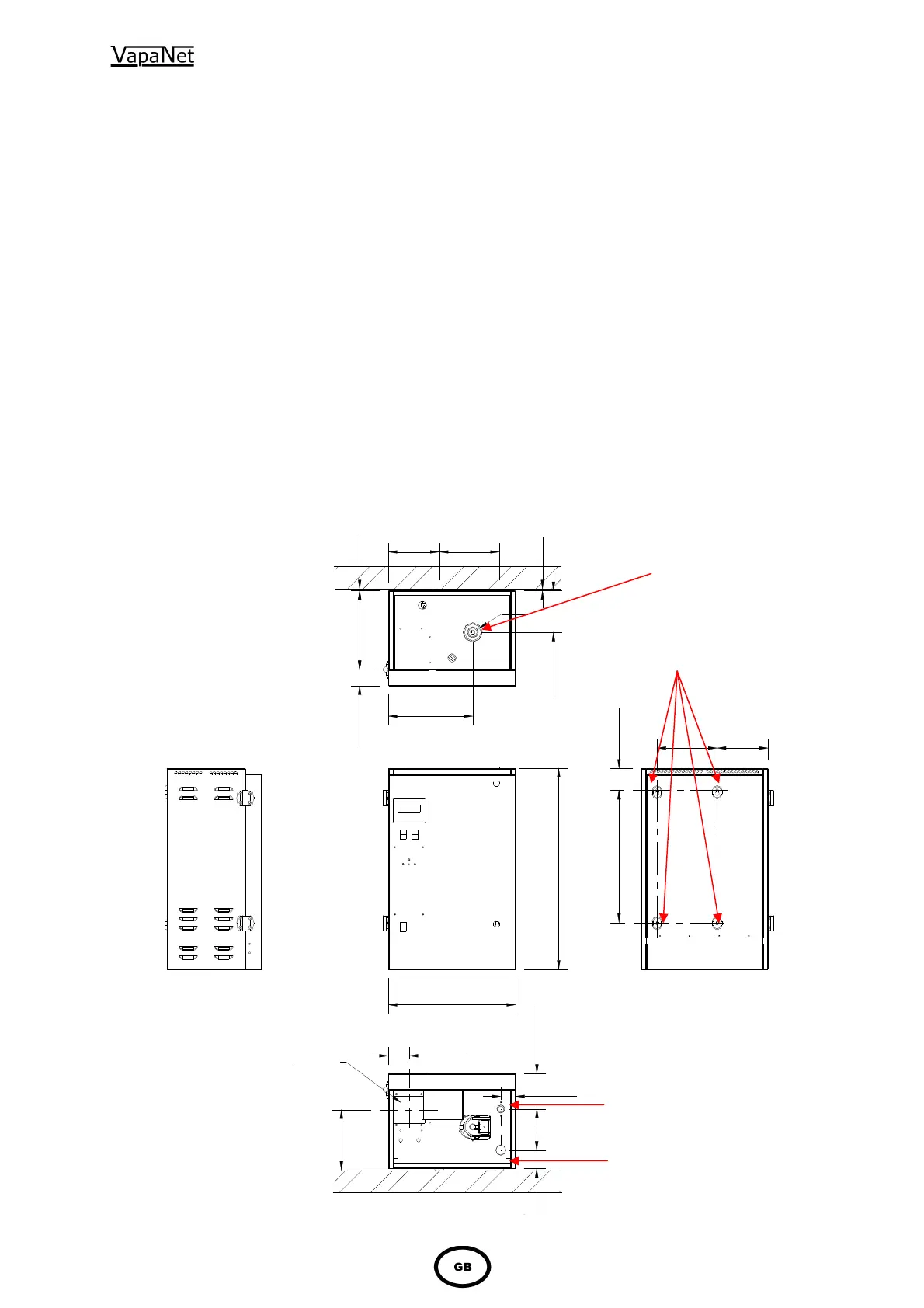
1.1 Vapac LE unit dimensions
Cabinet Size 1.
Covering model references:
LE05 – All
LE09 – All
LE18
All
Left:
Top view of unit
showing steam outlet
position (35 mm spigot)
Below:
Rear view of unit
showing wall mounting
points.
Right:
View from beneath unit
showing the electrical gland
plate (approx 120mm x
120mm) with an entry hole
(approx 105mm x 90mm)
Left:
View from beneath unit showing:
‘F’ (Feed) 19mm BSP male
connection for connection for
flexible hose provided with unit.
‘D’ (Drain) connection for 35 mm
pipe.
For clearance around the unit for ventilation & access please see page 7

Related product manuals