EasyManua.ls Logo

VARISCO J2 180 - Specification and Dimensions

VARISCO J2 180
24 pages
Print Icon
To Next Page IconTo Next Page
To Next Page IconTo Next Page
To Previous Page IconTo Previous Page
To Previous Page IconTo Previous Page
Loading...
2
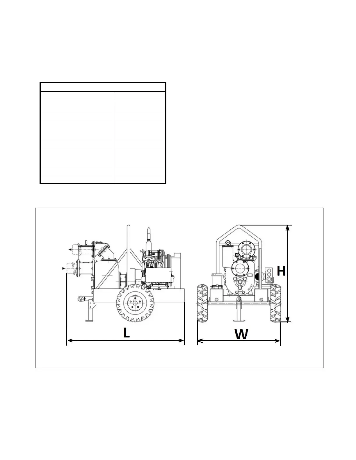
Specification and dimensions
J2 180
Max capacity
51m3/h
Max head
48m
Solids handling
15mm
Weight
126kg
Connection ports
2DN50
Dimensions LxWxH
860x710x1140
Petrol engine
Kohler CH440
Displacement
429 cm3
Starting
Pull start
Power
10,4 kW
Nominal speed
3600 rpm
Fuel tank capacity
7.7 l
Cooling
Air

Related product manuals