EasyManua.ls Logo

Venmar AVS E15 ECM ERV - 6 Wiring Diagrams

Venmar AVS E15 ECM ERV
24 pages
Print Icon
To Next Page IconTo Next Page
To Next Page IconTo Next Page
To Previous Page IconTo Previous Page
To Previous Page IconTo Previous Page
Loading...
16
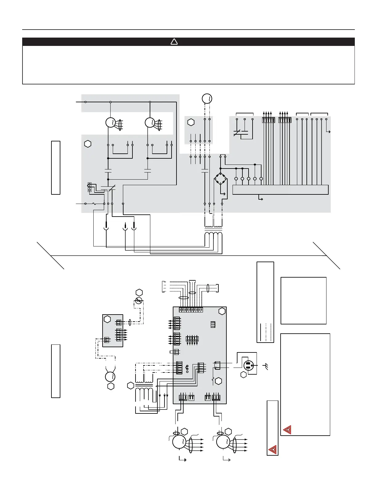
6. WIRING DIAGRAMS
Field wiring
remote control
(see notes 3 & 4)
120 V, 60 Hz
W1
J5
J7
J6
J4
ELECTRONIC ASSEMBLY
1
2
3
1
2
1
2
1
2
3
1234
12
12345
J8
J9
J11
J10
12
12345
J12
J13
J14
10
9
8
7
6
5
4
3
2
1
B
24 V
class 2
9.5 V
class 2
120V, 60Hz
Neutral
120 V, 60Hz
Line
CPU
K2
K4
K5
J5-2
J10-1J10-2
Line voltage factory wiring
Class 2 low voltage factory wiring
Class 2 low voltage field wiring
See note 1
120 V
83 V
62 V
neutral
1234512
12
J3
J2
J1
Damper motor
B
Override
switch
Furnace blower interlock
J14-1: NO
J14-2: COM
J14-3: nc
(optional; see notes 3 & 5)
DAMPER
ELECTRONIC ASSEMBLY
Defrost
temperature sensor
WIRING DIAGRAM
LOGIC DIAGRAM
Exhaust
fan motor
Supply
fan motor
J5-1
J5-3
J7-2
J7-1
J4-1
J4-3
J6-2
J6-1
K1
K3
K2
24 V
class 2
9.5 V
class 2
120 V
62 V
neutral
J9-1
J9-2
J9-3
J4-2
J9-4
J8-1
J8-2
J8-4
J8-5
K4
J12-2
J12-1
A1
Damper motor
J3-2
J3-1
J2-2
J2-1
F1
J12-5
J12-4
J12-3
J2-3
J2-4
J2-5
J11-2
J11-1
K1
K3
K5
J14-3
J14-1
J14-2
Furnace
blower
interlock
(optional; see
notes 3 & 5)
J14-4
J14-5
J14-6
J14-7
J14-8
J14-9
J14-10
Override
switch
(optional; see
notes 3 & 4)
Field wiring
remote
control (see
notes 3 & 4)
BDM
B
YRG
B
W
BL
R
BR
BL
BR
BL
G
BR
BR
Y
Y
B
W
A2
A2
M3
T1
R1
A1
F1
(optional; see
notes 3 & 4)
VE0184A
Critical characteristic.
JU1
123
MED HI
321
HI MED
JU1
NOTES
1. Use specified UL listed/CSA Certified line fuse
(3A, 3AG Type).
2. If any of the original wire, as supplied, must
be replaced, use the same equivalent wire.
3. Field wiring must comply with applicable
codes, ordinances and regulations.
4. Remote controls (class 2 circuit) available,
see instruction manual.
5. Furnace fan circuit must be class 2 circuit only.
R
57 V
nc
O
COLOR CODE
BBLACK
BL BLUE
BR BROWN
GGREEN
O ORANGE
RRED
W
WHITE
Y YELLOW
nc no connection
57 V
R
BL
83 V
OO
B
nc
to A1-J12
Class 2
low voltage
factory wiring
to
A2-J2
12345
J15
Y
BL
R
W
nc
12345
J17
Y
BL
R
W
nc
From
supply motor
control cable
From
exhaust motor
control cable
Exhaust fan motor
M1
G
Y
BL
R
W
Control cable
Power cable
to A1-J17
Supply fan motor
M2
G
Y
BL
R
W
Control cable
Power cable
to A1-J15
to A1-J17
to A1-J15
12345
J15
nc
12345
J17
nc
From
supply motor
From
exhaust moto
r
AVS E15 ECM ERV, AVS E15 ECM HRV,
90H-V ECM ERV & 90H-V ECM HRV UNITS
Risk of electric shocks. Before performing any maintenance or servicing, always disconnect the unit from its power source.
This product is equipped with an overload protection (fuse). A blown fuse indicates an overload or a short-circuit situation.
If the fuse blows, unplug the product and check the polarity and voltage output from the outlet. Replace the fuse as per the
servicing instructions (refer to wiring diagram for proper fuse rating) and verify the product. If the replaced fuse blows, it may
be a short-circuit and the product must be discarded or returned to an authorized service center for examination and/or repair.
WARNING
!