EasyManua.ls Logo

Venmar AVS E15 ECM ERV - Page 18

Venmar AVS E15 ECM ERV
24 pages
Print Icon
To Next Page IconTo Next Page
To Next Page IconTo Next Page
To Previous Page IconTo Previous Page
To Previous Page IconTo Previous Page
Loading...
18
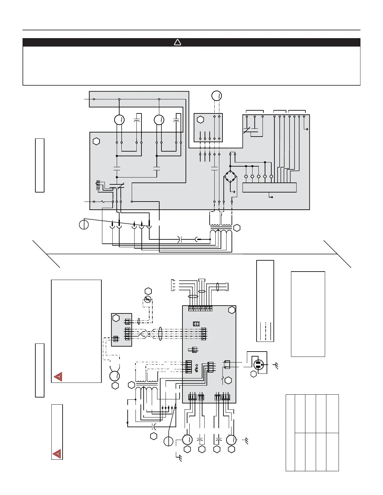
6. WIRING DIAGRAMS (CONTD)
Risk of electric shocks. Before performing any maintenance or servicing, always disconnect the unit from its power source.
This product is equipped with an overload protection (fuse). A blown fuse indicates an overload or a short-circuit situation.
If the fuse blows, unplug the product and check the polarity and voltage output from the outlet. Replace the fuse as per the
servicing instructions (refer to wiring diagram for proper fuse rating) and verify the product. If the replaced fuse blows, it may
be a short-circuit and the product must be discarded or returned to an authorized service center for examination and/or repair.
WARNING
!
Field wiring
remote control
(see notes 3 & 4)
120 V, 60 Hz
W1
J5
J7
J6
J4
ELECTRONIC
ASSEMBLY
1
2
3
1
2
1
2
1
2
3
1234
12345
12345
J8
J9
J11
J10
12
J12
J13
J14
10
9
8
7
6
5
4
3
2
1
B
24 V
class 2
9.5 V
class 2
120 V, 60 Hz
Neutral
120 V, 60 Hz
Line
CPU
K2
K4
K5
J5-2
J10-1J10-2
Line voltage factory wiring
Class 2 low voltage factory wiring
Class 2 low voltage field wiring
See note 1
120 V
100 V
68 V
neutral
Exhaust fan
motor
1234512
12
J3
J2
J1
Damper motor
Override
switch
Furnace blower interlock
J14-1 : NO
J14-2 : COM
J14-3 : nc
(optional; see notes 3, 5)
DAMPER
ELECTRONIC ASSEMBLY
Defrost
temperature sensor
WIRING DIAGRAM
LOGIC DIAGRAM
Exhaust
fan motor
Supply
fan motor
J5-1
J5-3
J7-2
J7-1
J4-1
J4-3
J6-2
J6-1
K1
K3
K2
J9-1
J9-2
J9-3
J4-2
J9-4
Exhaust fan
motor capacitor
Supply fan
motor capacitor
J8-1
J8-2
J8-4
J8-5
K4
J12-2
J12-1
A1
Damper motor
J3-2
J3-1
J2-2
J2-1
F1
J12-5
J12-4
J12-3
J2-3
J2-4
J2-5
J11-2
J11-1
K1
K3
K5
J14-3
J14-1
J14-2
Furnace
blower
interlock
(optional; see
notes 3, 5)
J14-4
J14-5
J14-6
J14-7
J14-8
J14-9
J14-10
Override
switch
(optional; see
notes 3, 4)
Field wiring
remote
control (see
notes 3, 4)
ICP
YRG
B
W
BL
R
G
B
BL
BN
BN
B
B
B
B
B
BL
Exhaust fan
motor
capacitor
Supply fan
motor
capacitor
Supply fan
motor
G
G
BN
Y
Y
B
W
A2
A2
M3
T1
R1
A1
F1
M1
C1
C2
M2
(optional; see
notes 3 & 4)
VE0306A
COLOR CODE
B BLACK
BL BLUE
BN BROWN
G GREEN
O ORANGE
Critical characteristic.
JU1
123
MED HI
321
HI MED
JU1
NOTES
1. Use specified UL listed/CSA Certified line fuse
(3A, 3AG Type).
2. If any of the original wire, as supplied, must
be replaced, use the same equivalent wire.
3. Field wiring must comply with applicable
codes, ordinances and regulations.
4. Remote controls (class 2 circuit) available,
see instruction manual.
5. Furnace fan circuit must be class 2 circuit only.
Ref
1
Ref
1
P MED
LO (2)
62 V
nc
O
RRED
W WHITE
Y YELLOW
nc no connection
R
RED LO
O
B HI
nc
FAN MOTORS SPEED SELECTION
BN
B
C3
Low speed
capacitor
O
83 V
P
R
nc
nc
B
B
REF 1 RED CFM MAX
Factory set
C3 to RED
50
65
85
RED to RED
BLUE to RED
P PURPLE
120 V
100 V
68 V
neutral
62 V
83 V
W
Low speed
capacitor
MED-LO
nc
BL
O
MED-HI
nc
24 V
class 2
9.5 V
class 2
T1
12
AVS E10 HRV AND 60H-V+ UNITS