EasyManua.ls Logo

Vente Unique PH050013 - SAFETY & ANNOUNCEMENTS; Equipotent Bonding and Zone Safety

Default Icon
Print Icon
To Next Page IconTo Next Page
To Next Page IconTo Next Page
To Previous Page IconTo Previous Page
To Previous Page IconTo Previous Page
Loading...
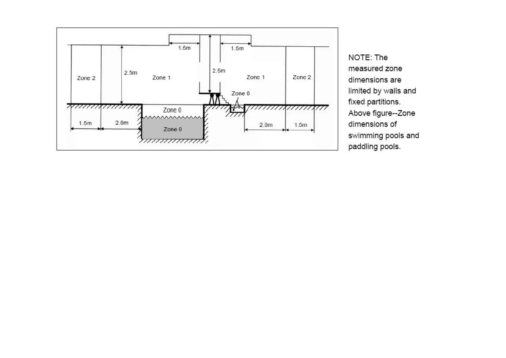
Zone 1
Note: The measured zone dimensions are limited by walls and fixed partitions. Above figure—Zone dimensions
of swimming pools and padding pools.
SAFETY & ANNOUNCEMENTS
1. A local supplementary equipotent bonding shall connec
t
all extraneous conductive parts in Zones 0, 1 and 2
with protective conductors of all exposed conductive parts situated in these zones.
10.The measures of protection by non-conducting location and by earth-free equipotent bonding are not
permitted.
11.Electrical equipment shall have at leas
t
the following degrees of protection:
12.Junction boxes shall not be installed in Zones 0 and 1 except in zone 1, where permitted for SELV circui
t
s
.
13.In Zone 0: IPX8
14.In Zone 1: IPX5
15.In Zones 0 and 1, no switchgear and accessories shall be installed.
16.The trans
f
ormer must be located outside zone 1.

Related product manuals