EasyManua.ls Logo

Vente Unique PH050013 - Problemlösung

Default Icon
Print Icon
To Next Page IconTo Next Page
To Next Page IconTo Next Page
To Previous Page IconTo Previous Page
To Previous Page IconTo Previous Page
Loading...
Problemlösung
Nachstehend finden Sie einige nützl
i
che T
i
pps, mit denen Sie viele allgemeine Probleme auch selbs
t
beheben können.
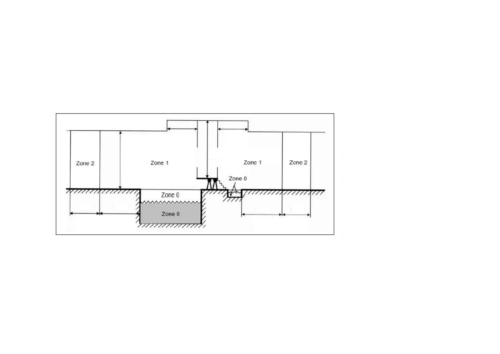
Wasserschutzebenen
Warnung: Die Wasserschutzebenen unterscheiden sich je nach unterschiedlichen Zonen. Schauen S
i
e sich die
nachstehende Abbildung an
:
1,5 m
2,5 m
2,0 m
1,5 m
1,5 m
2,5 m
2,0 m
1,5 m
Zone 1
Hinweis: Die
Zonenabmessungen
werden durch nde
und andere
unverrückbare
Komponenten limitiert.
Obige Abbildung
Zonenabmessungen bei
Swimm
i
ngpools und
ähn
li
chen Einrichtungen.
Wichtige Sicherheits- und sonst
i
ge Hinwe
i
se
17. Sämtl
i
che äußeren, leitenden Te
il
e
i
n den Zonen 0, 1 und 2 müssen über einen zusätzlichen Potenzialausgleich
verbunden werden. Schutzerde muss bei sämtlichen offenen, leitfähigen Te
ile
n
i
nnerhalb dieser Zonen eingesetzt
werden.
18. Schutzmaßnahmen durch nicht-leitende Aufstellung sowie durch erdfreien Potenz
i
alausgleich sind nicht zugelassen.
19. Elektrogeräte müssen mindestens den folgenden Schutzklassen entsprechen
:

Related product manuals