EasyManua.ls Logo

Vertiv Liebert DA265 - Page 81

Vertiv Liebert DA265
91 pages
Print Icon
To Next Page IconTo Next Page
To Next Page IconTo Next Page
To Previous Page IconTo Previous Page
To Previous Page IconTo Previous Page
Loading...
REV : 2
REV DATE : 9/19
DPN004476
Page :1 /1
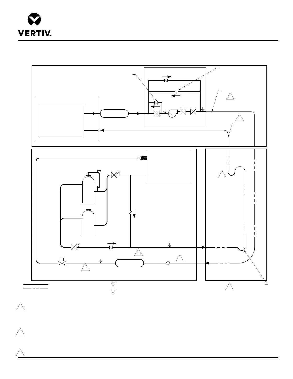
DA125, DA150, DA165 & DA250 with LIEBERT MCV
Form No.: DPN001040_REV4
PIPING SCHEMATIC
LIEBERT DSE
Electronic
Expansion
Valve
LIEBERT MCV HEAT REJECTION SKID
LIQUID
EVAPORATOR
COIL
SUCTION
Check
Valve
Trap at base of risers
over 5ft. (1.5m)*
LIQUID RETURN
HOT GAS DISCHARGE
For rises over
25ft. (7.6m), trap
every 20ft. (6m)
or evenly divided*
Optional "EconoPhase" UNIT
Ball Valve
Ball Valve
Check
Valve
Solenoid
Valve
Notes:
1. Two refrigeration circuits provided. Single refrigeration circuit shown for clarity.
2. Circuit 1 must be maintained between indoor unit, condenser and EconoPhase unit. Circuit 2 must be maintained between indoor unit, condenser and EconoPhase unit.
3. Schematic representation shown. Do not use for specific connection locations.
4. The outlet of the receiver must be higher than the elevation of the EEV inside the indoor unit. This vertical height must not exceed 60ft. (18.3m). Liebert DSE Receiver required
for systems with or without EconoPhase unit.
5. All indoor and outdoor field refrigerant piping must be insulated, 1/2" minimum thickness. All outdoor insulation must be UV and ozone resistant.
6. Components are not supplied by Liebert but are required for proper circuit operation and maintenance (DA250 with top piping has internally installed traps on the discharge lines).
7. Traps must be installed and horizontal lines pitched to ensure proper oil return and to reduce liquid flood back to compressor. Pitch horizontal gas piping at a minimum of
1/2" per 10 feet (42mm per 10m) so that gravity will aid in moving oil in the direction of the refrigeration flow.
8. Do not isolate any refrigeration circuits from over pressurization protection.
9. Typical location for Sight Glass on DA150 and DA165. On DA125, Sight Glass is located between Filter Drier and Electronic Expansion Valve.
Service
Valve
Service
Valve
LIEBERT DSE
Check
Valve
Liquid to Indoor Unit
LIEBERT DSE
RECEIVER
Differential
Check Valve
Differential
Check Valve
SERVICE/SCHRADER (ACCESS) CONNECTION, WITH VALVE CORE.
FIELD PIPING
FACTORY REFRIGERANT PIPING
SERVICE/SCHRADER (ACCESS) CONNECTION, NO VALVE CORE.
2
2
6
6
Filter Drier
LIEBERT MCV CONDENSER
2
2
INTERCONNECTING
PIPING
Hot Gas
Discharge
from Indoor
Unit
Sight Glass
9

Table of Contents

Related product manuals