EasyManua.ls Logo

Vertiv Liebert DA265 - Page 82

Vertiv Liebert DA265
91 pages
Print Icon
To Next Page IconTo Next Page
To Next Page IconTo Next Page
To Previous Page IconTo Previous Page
To Previous Page IconTo Previous Page
Loading...
REV : 0
REV DATE : 2/20
DPN005206
Page :1 /1
Form No.: DPN001040_REV4
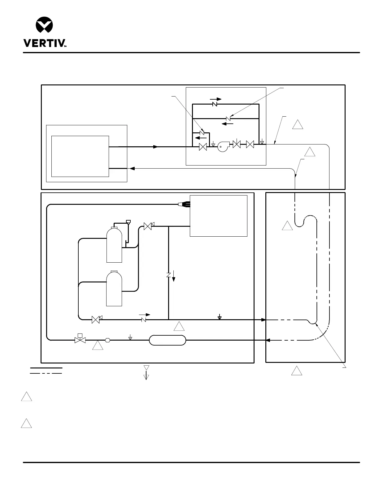
PIPING SCHEMATIC
LIEBERT
®
DSE
DA265 with LIEBERT
®
MCV
Electronic
Expansion
Valve
LIQUID
EVAPORATOR
COIL
SUCTION
Check
Valve
Trap at base of risers
over 5ft. (1.5m)*
LIQUID RETURN
HOT GAS DISCHARGE
For rises over
25ft. (7.6m), trap
every 20ft. (6m)
or evenly divided*
Ball Valve
Ball Valve
Check
Valve
Solenoid
Valve
Notes:
1. Two refrigeration circuits provided. Single refrigeration circuit shown for clarity.
2. Circuit 1 must be maintained between indoor unit, condenser and EconoPhase unit. Circuit 2 must be maintained between indoor unit, condenser and Liebert EconoPhase unit.
3. Schematic representation shown. Do not use for specific connection locations.
4. The bottom of the condenser coil must be no greater than 60 ft (18.3m) above and less than 15 ft (4.6m) below the elevation of the EEV inside the indoor unit.
5. All indoor and outdoor field refrigerant piping must be insulated, 1/2" minimum thickness. All outdoor insulation must be UV and ozone resistant.
6. Components are not supplied by Liebert but are required for proper circuit operation and maintenance (DA265 with top piping has internally installed traps on the discharge lines).
7. Traps must be installed and horizontal lines pitched to ensure proper oil return and to reduce liquid flood back to compressor. Pitch horizontal gas piping at a minimum of
1/2" per 10 feet (42mm per 10m) so that gravity will aid in moving oil in the direction of the refrigeration flow.
8. Do not isolate any refrigeration circuits from over pressurization protection.
Service
Valve
Service
Valve
Check
Valve
Liquid to Indoor Unit
Differential
Check Valve
Differential
Check Valve
SERVICE/SCHRADER (ACCESS) CONNECTION, WITH VALVE CORE.
FIELD PIPING
FACTORY REFRIGERANT PIPING
SERVICE/SCHRADER (ACCESS) CONNECTION, NO VALVE CORE.
2
2
6
6
Filter Drier
2
2
INTERCONNECTING
PIPING
Hot Gas
Discharge
from Indoor
Unit
Sight Glass
Liebert
®
MCV HEAT REJECTION SKID
Optional
Liebert
®
EconoPhase" UNIT
Liebert
®
MCV CONDENSER
Liebert
®
DSE
®

Table of Contents

Related product manuals