EasyManua.ls Logo

Vertiv Liebert SiteLink-2E - Page 9

Vertiv Liebert SiteLink-2E
26 pages
Print Icon
To Next Page IconTo Next Page
To Next Page IconTo Next Page
To Previous Page IconTo Previous Page
To Previous Page IconTo Previous Page
Loading...
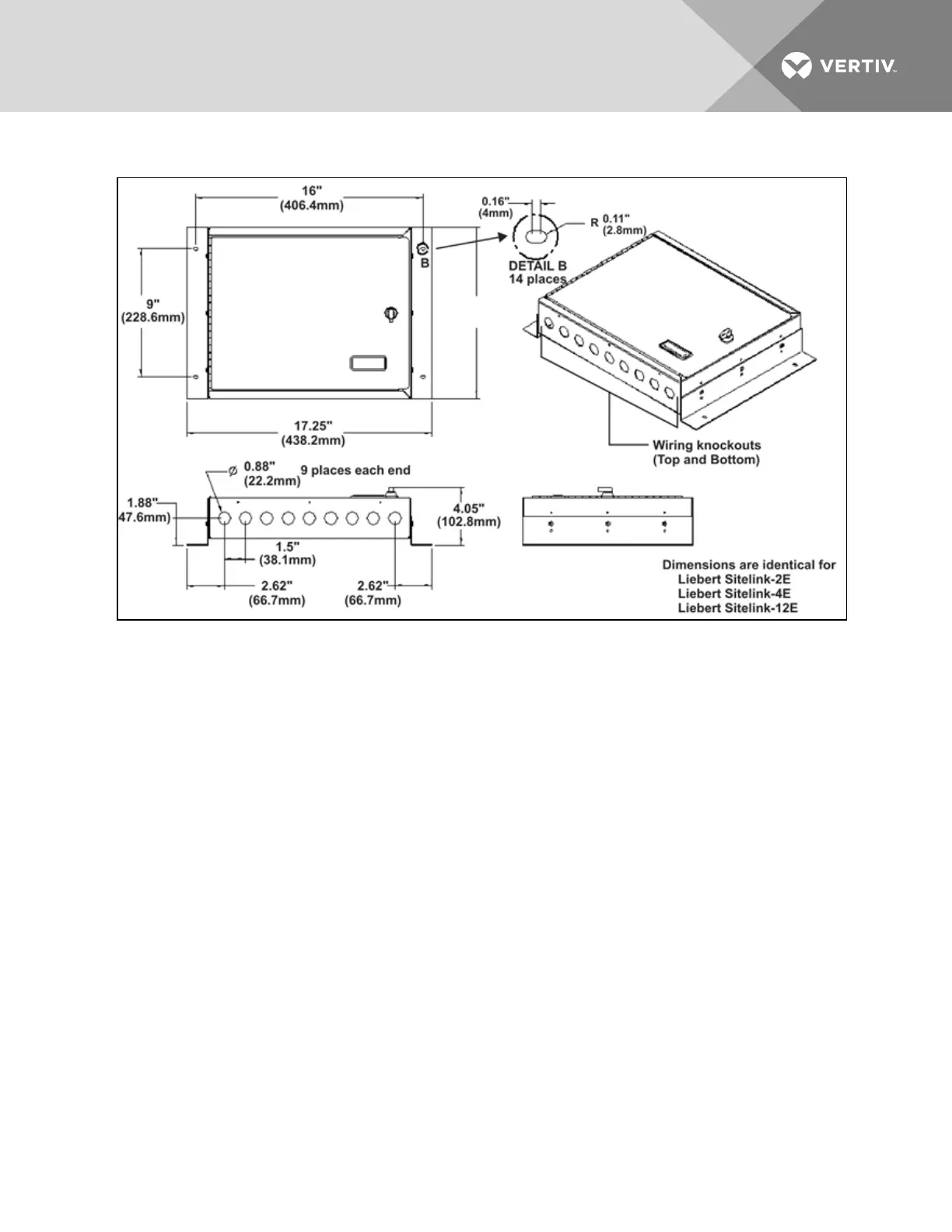
Figure 2.4 Enclosure dimensions—Floor mount
Vertiv | Liebert® SiteLink-E Installation Manual | 9