EasyManua.ls Logo

Viking CLASS I - Gate Operator Installation; Concrete Pad Option

Viking CLASS I
50 pages
Print Icon
To Next Page IconTo Next Page
To Next Page IconTo Next Page
To Previous Page IconTo Previous Page
To Previous Page IconTo Previous Page
Loading...
VIKING TECHNICAL SUPPORT 1.800.908.0884
14
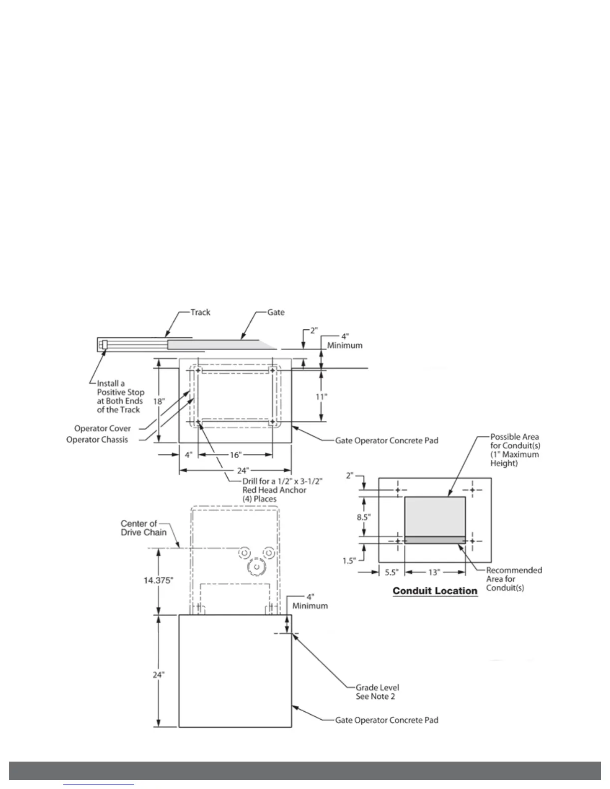
GATE OPERATOR INSTALLATION
Concrete Pad Option
1.
Follow the local building code to determine the required depth of the
concrete pad.
2.
Pad measurements recommended by Viking Access Systems are at least
24” long, 18” wide and 24” deep to ensure the stable operation of the
operator, and a minimum of 4” above level grade to avoid any flooding of
the machinery.
3.
Provide a sufficient number of conduit pathways for all low power
accessories such as loop detector leads, maglock, non-contact sensors,
contact sensors, safety and other commands. Also provide conduit for the
power supply to the operator.
! DO NOT run low voltage and high voltage wiring in the same conduit.
! Provide at least 12” separation between low and high voltage conduits.

Related product manuals