EasyManua.ls Logo

Viking FGNI515 - Page 11

Viking FGNI515
20 pages
Print Icon
To Next Page IconTo Next Page
To Next Page IconTo Next Page
To Previous Page IconTo Previous Page
To Previous Page IconTo Previous Page
Loading...
11
13-9/16”
(34.4 cm)
8-1/4”
(20.9 cm)
6-25/32”
(17.7 cm)
4-1/8”
(10.5 cm)
13/16”
(2.4 cm)
13/32”
(1.3 cm)
13/32”
(1.3 cm)
14-7/8”
(37.9 cm)
30-5/16”
(77.0 cm)
14-11/16”
(37.3 cm)
ø 1/8”
TYP. (10)
13-31/64”
(34.3 cm)
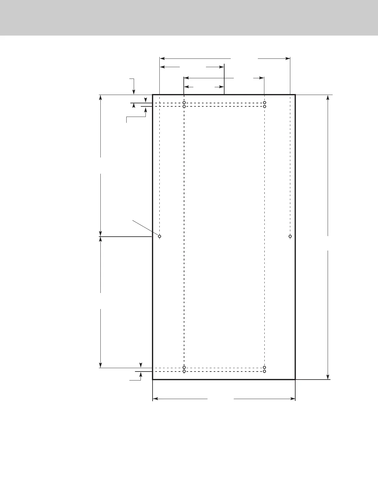
CUSTOM PANEL DIMENSIONS
Installation (con’t)

Other manuals for Viking FGNI515

Related product manuals