EasyManua.ls Logo

Viking FPIM515 - CUSTOM PANEL DIMENSIONS; Panel Drilling and Mounting

Viking FPIM515
20 pages
Print Icon
To Next Page IconTo Next Page
To Next Page IconTo Next Page
To Previous Page IconTo Previous Page
To Previous Page IconTo Previous Page
Loading...
11
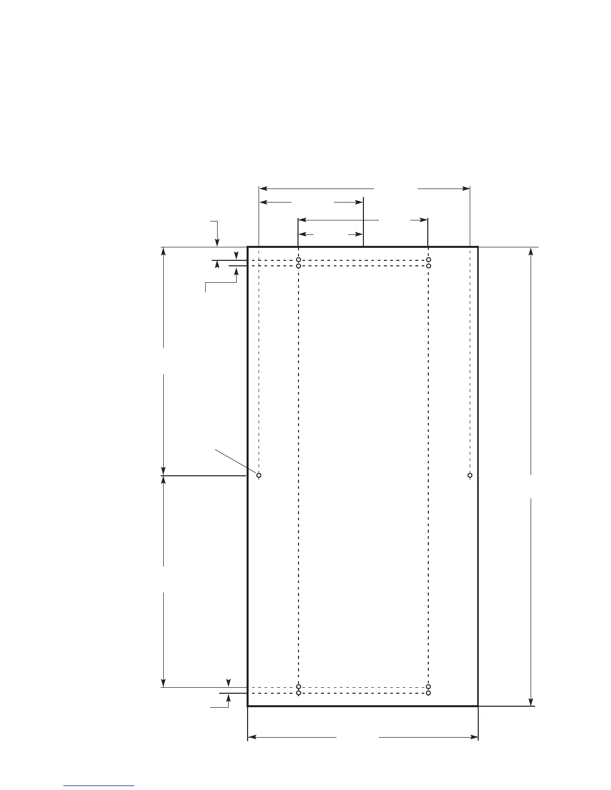
4. Subtract 1/8” or more for clearance space between top of door and bottom of countertop edge from cabinet
opening. This is the maximum door length.
5. Cut panel to width
6. Cut panel to length (cabinet space - kickplate space - top clearance = length).
7. Determine top of panel.
8. Mark hole locations using drawing on the back of these instructions. Drawing assumes top of panel will be flush
with top of door. Measure hole locations from the top of the panel.
9. Drill pilot holes for wood screws. Use drill stop to prevent drilling through the panel.
10. Mount panel to door using wood screws or supplied panel mounting screws.
Note: When installed, ice machine must be adjusted for height to position top of door to desired clearance.
13-9/16”
(34.4 cm)
8-1/4”
(20.9 cm)
6-25/32”
(17.7 cm)
4-1/8”
(10.5 cm)
13/16”
(2.4 cm)
13/32”
(1.3 cm)
13/32”
(1.3 cm)
14-7/8”
(37.9 cm)
30-5/16”
(77.0 cm)
14-11/16”
(37.3 cm)
ø 1/8”
TYP. (10)
13-31/64”
(34.3 cm)
CUSTOM PANEL DIMENSIONS

Other manuals for Viking FPIM515

Related product manuals