EasyManua.ls Logo

Viking H10SPS - Gate Operator Installation; Concrete Pad Option

Viking H10SPS
48 pages
Print Icon
To Next Page IconTo Next Page
To Next Page IconTo Next Page
To Previous Page IconTo Previous Page
To Previous Page IconTo Previous Page
Loading...
VIKING TECHNICAL SUPPORT 1.800.908.0884
14
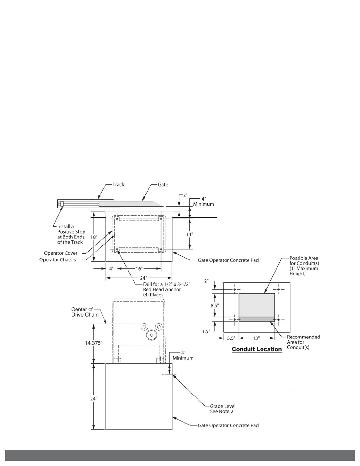
GATE OPERATOR INSTALLATION
Concrete Pad Option
1.
Follow the local building code to determine the required depth of the con-
crete pad.
2.
Pad measurements recommended by Viking Access Systems are at lease
24” long, 18” wide and 24” deep to ensure the stable operation of the op-
erator, and a minimum of 4” above level grade to avoid any flooding of the
machinery.
3.
Provide a sufficient number of conduit pathways for all low power acces-
sories such as loop detector leads, maglock, non-contact sensors, contact
sensors, safety and other commands. Also provide conduit for the power
supply to the operator.
! DO NOT run low voltage and high voltage wiring in the same conduit.
! Provide at least 12” separation between low and high voltage conduits.

Related product manuals