EasyManua.ls Logo

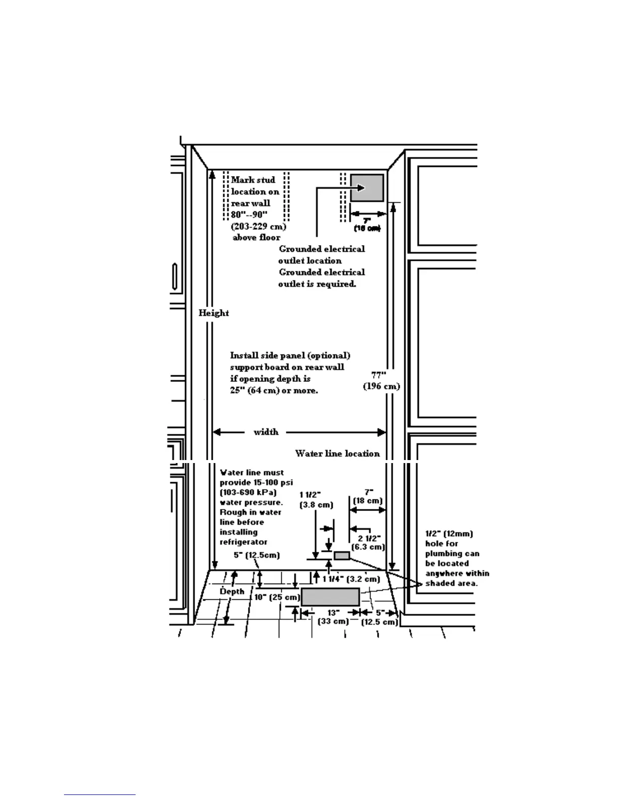
Viking VCSB420 - Refrigerator Installation Cutout

Viking VCSB420
63 pages
Print Icon
To Next Page IconTo Next Page
To Next Page IconTo Next Page
To Previous Page IconTo Previous Page
To Previous Page IconTo Previous Page
Loading...
REFRIGERATOR INSTALLATION
61

Related product manuals