EasyManua.ls Logo

Viking VUAR144 - Beverage Center Wiring Schematic

Viking VUAR144
25 pages
Print Icon
To Next Page IconTo Next Page
To Next Page IconTo Next Page
To Previous Page IconTo Previous Page
To Previous Page IconTo Previous Page
Loading...
Wiring Diagrams and Schematics
24 SMR-0003 © Viking Range Corporation
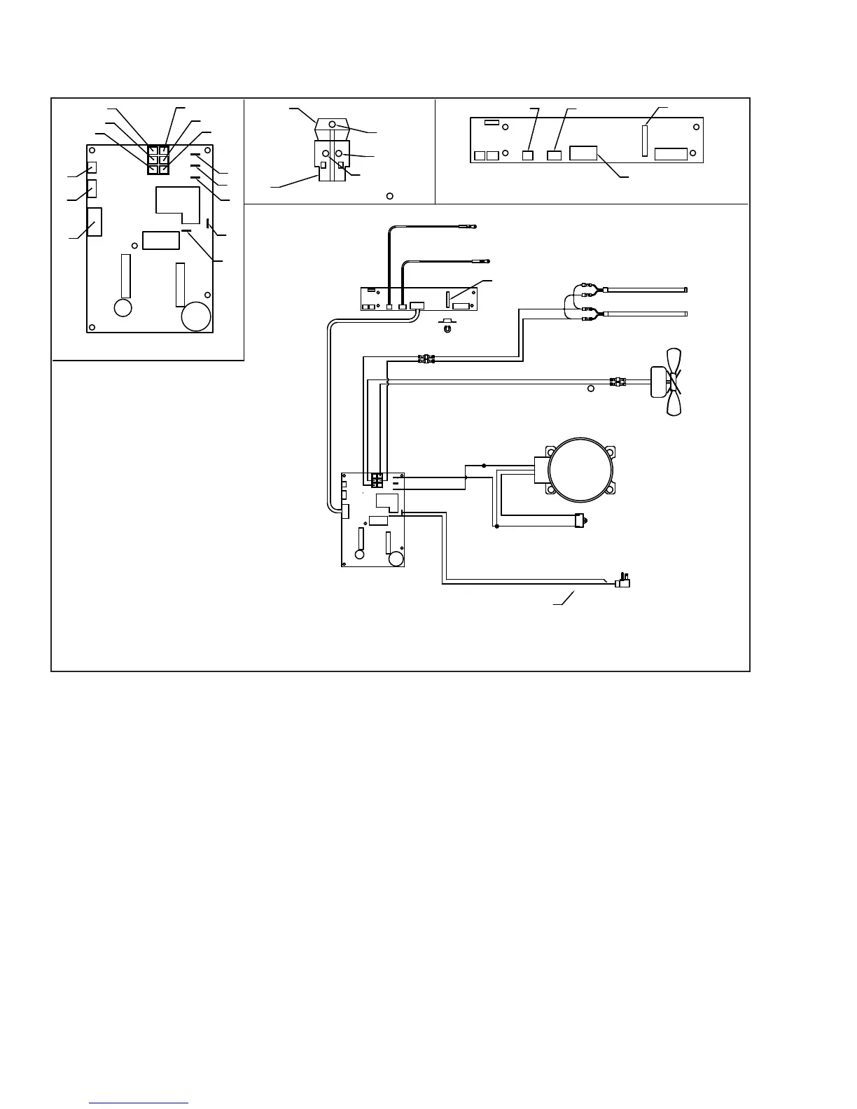
Beverage Center Wiring Schematic
TECUMSEH
COMPRESSOR
CAPACITOR
CONDENSER
FAN
AIR SENSE THERMISTOR
EVAP. SENSE THERMISTOR
AURA LIGHT
AURA LIGHT
SERVICE CORD
CONTROL
BOARD
USER INTERFACE
BOARD
DOOR
MAGNET
REED
SWITCH
WHT
BLK/YEL
WHITE
RED
WHT
BLK
WHT
BLU
WHT/YEL
COMM.
CONTROL BOARD DETAIL
TOP VIEW
ORG
WHITE
WHITE
BLK/YEL
BLUE
TAN
J5
J8
J6
J4
J4A
J7
LINE
NEU
CHASSIS GND.-GRN
USER INTERFACE BOARD
BACK VIEW
REED SWITCH (FRONT)
DATA COMMUNICATION
AIR SENSE
EVAP SENSE
COMPRESSOR WIRING
WHITE
RED
WHITE/YELLOW
PTC
OVERLOAD
C
C
DFUR143, DFUR144, DUAR143
DUAR144, VUAR143, VUAR144

Related product manuals