EasyManua.ls Logo

VLT FC 300 - Page 18

Default Icon
110 pages
Print Icon
To Next Page IconTo Next Page
To Next Page IconTo Next Page
To Previous Page IconTo Previous Page
To Previous Page IconTo Previous Page
Loading...
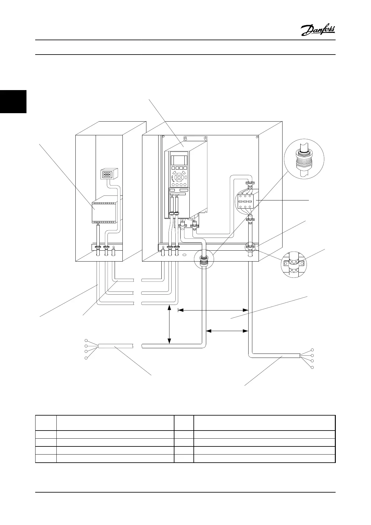
* Terminal 37 is not included in FC 301 (except frame size
A1). Relay 2 and terminal 29 have no function in FC 301.
** Do not connect cable screen.
1
2
3
4
5
6
7
8
PE
U
V
W
9
L1
L2
L3
PE
130BB607.10
10
Figure 2.5 Typical Electrical Connection
1
PLC 6 Min. 200 mm (7.9 in) between control cables, motor and line
power
2 Adjustable frequency drive 7 Motor, 3-phase and PE
3 Output contactor (Generally not recommended) 8 Line power, 3-phase and reinforced PE
4 Grounding rail (PE) 9 Control wiring
5 Cable insulation (stripped) 10
Equalizing min. 16 mm
2
(0.025 in
2
)
Table 2.2 Legend to Figure 2.5
Installation
VLT
®
AutomationDrive Instruction
Manual
2-4 MG33AM22 - VLT
®
is a registered Danfoss trademark
2
2

Table of Contents