EasyManua.ls Logo

Voltronic Axpert VM IV - Page 33

Default Icon
41 pages
Print Icon
To Next Page IconTo Next Page
To Next Page IconTo Next Page
To Previous Page IconTo Previous Page
To Previous Page IconTo Previous Page
Loading...
31
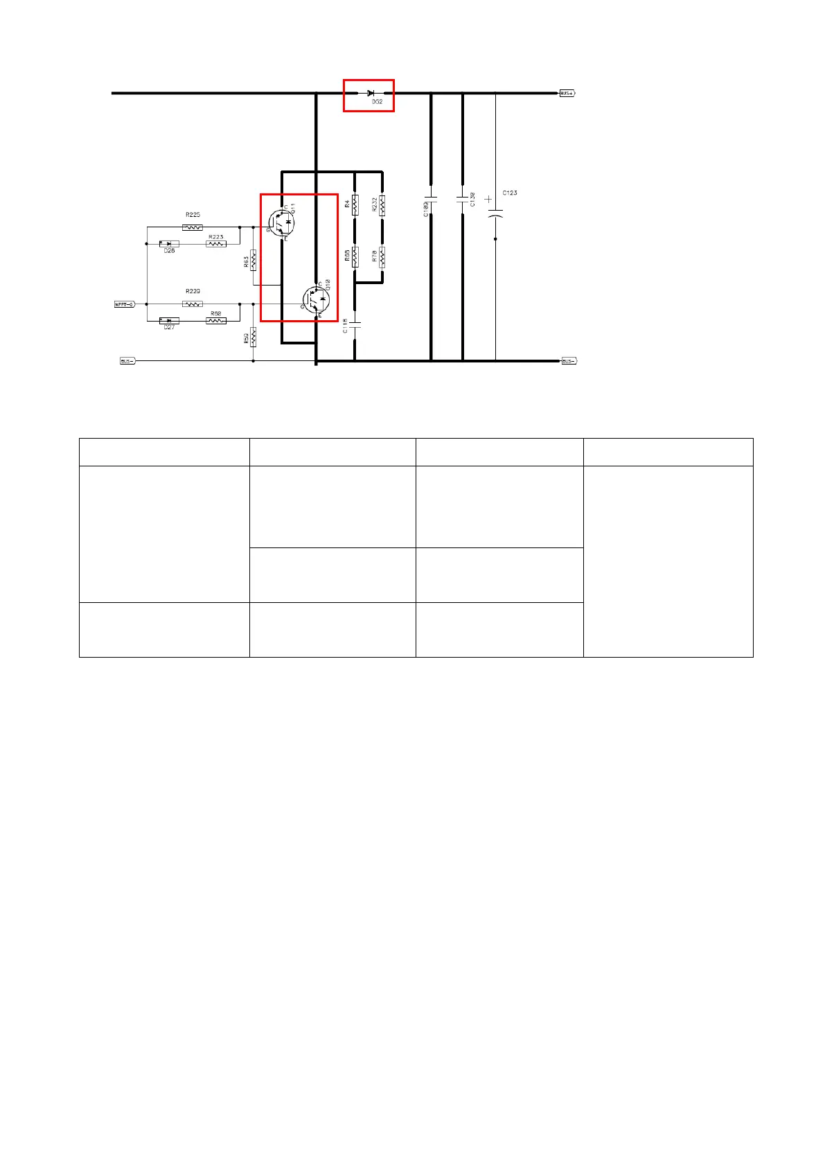
The D52 are (30DQ60BG 30A 600V TO-247)
The Q10 and Q11 IGBT are (STGW60H65DFB 60A 650V TO-247)
Parts
Attribute
Reference values
Failure status
Q10, Q11
Resistor
GE: 18.29k
GC: 206.1k
CE: 358.7k
Short or explosion
Diode
EC: 0.389V
CE: OL
D52
Diode
+ to -: 0.39V
- to +: OL