EasyManua.ls Logo

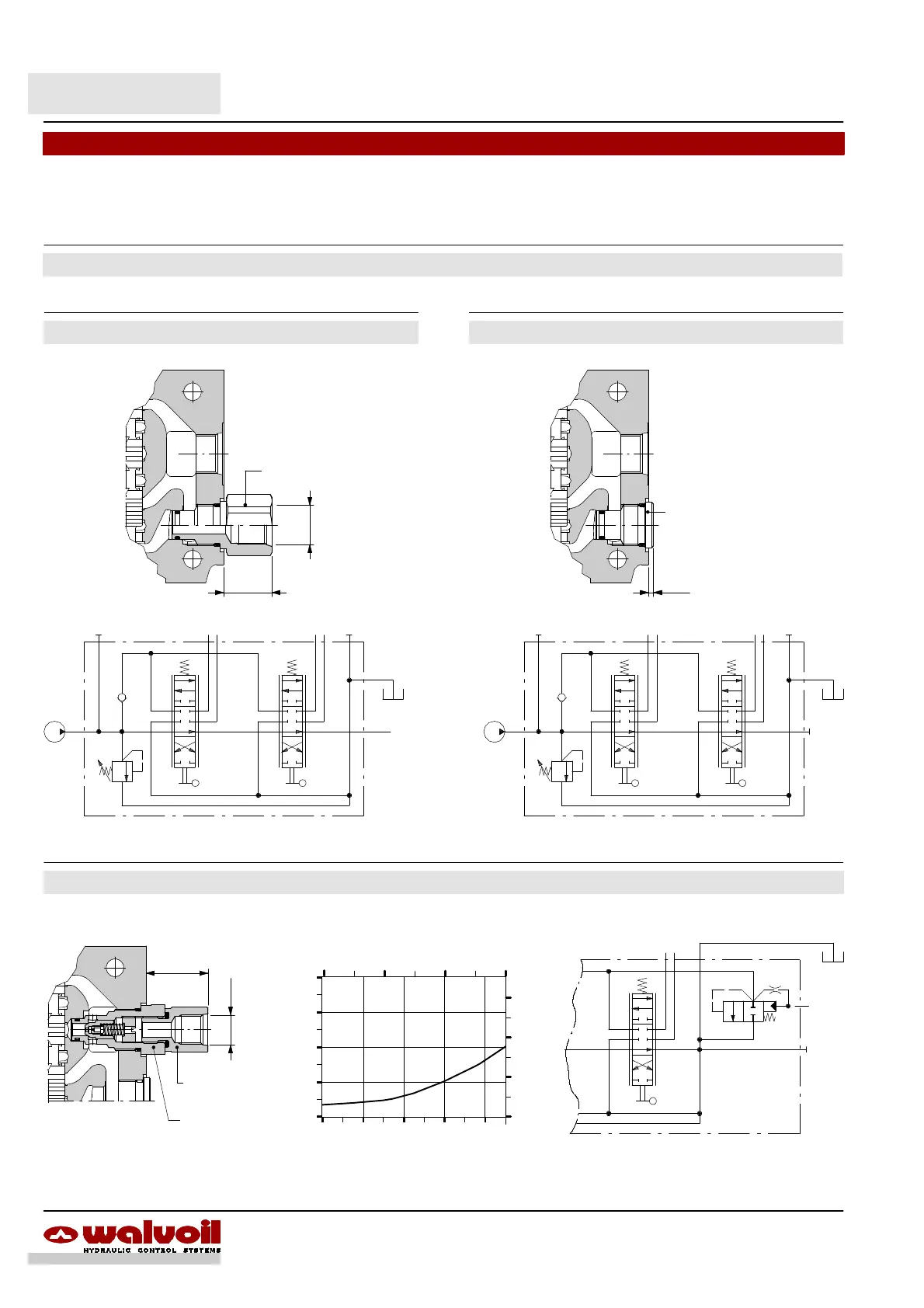
Walvoil SD5 - Outlet port options; AET: open center; AE: with power beyond; AEK: closed center

Walvoil SD5
64 pages
Print Icon
To Next Page IconTo Next Page
To Next Page IconTo Next Page
To Previous Page IconTo Previous Page
To Previous Page IconTo Previous Page
Loading...
AE: with power beyond
AET: open center (standard)
Outlet port options
See page 6
Ex: SD5/2--P(KG3--120)/18L/18L/AE--SAE
P
A1 B1 A2 B2
T
Ex: SD5/2--P(KG3--120)/18L/18L/AEK
P
A1 B1 A2 B2
T
C
C
L: hydraulic pilot unloader valve
For safety reasons its provided with pilot port plugged.
31
SAE6
X
A2 B2
T
Ex.: SD5/2--P(JG3--120)/18L/18L/AET--L--SAE
X
AEK: closed center
0
3
6
9
12
0 10 20 30 40
Pressure drop curve
Flow
Pressure
(l/min)
(bar)
Its possible to have open center, closed center and power beyond.
Unloader valves are available: these valves need special bodies with appropriate cavity on lateral outlet port, the tank connection
T must be on top.
Operating features
Internal leakage : 10 cm
3
/min a 100 bar. . . . . . . . . . . . . . . . .
: 0.61 in
3
/min at 1450 psi
45
23.5
0.93
4
Allen wrench 8 --42 Nm / 31 lbft
0.16
120
1750
120
1750
(psi)
150
100
50
Wrench 24
42 Nm / 31 lbft
1.22
Wrench 27 --42 Nm / 31 lbft
SAE8
4 8
(US gpm)
12
Wrench 22
24 Nm / 17.7 lbft
SD5
40 DAT003A