EasyManua.ls Logo

Wayne-Dalton Quantum 3314 - Installation Instructions: Install Wired Infrared Safety Sensor Wall Mounting Brackets; Installation Instructions: Attach Wired Infrared Safety Sensor U Brackets

Wayne-Dalton Quantum 3314
32 pages
Print Icon
To Next Page IconTo Next Page
To Next Page IconTo Next Page
To Previous Page IconTo Previous Page
To Previous Page IconTo Previous Page
Loading...
11
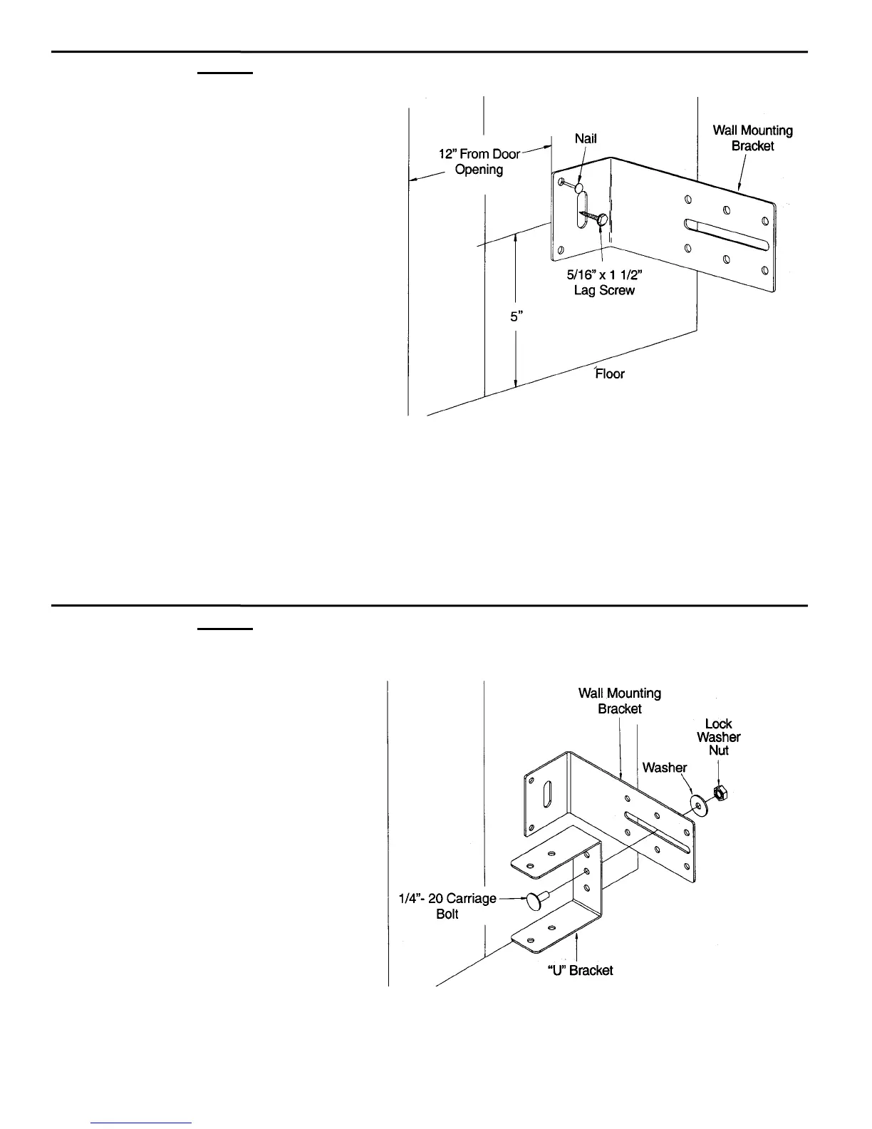
Step 14: Install Wired Infrared Safety Sensor Wall Mounting Brackets
Use the following instructions if your opener is
equipped with Wired Infrared Safety Sensors. If
you just installed the Wireless Infrared Safety Sen-
sors go to step 19.
Select a mounting position 5 inches above the floor to
center line of wall bracket. The sending and receiving
units should be mounted inside the door opening to
minimize any interference by the sun. However, the
sensors should be mounted as close to the door track
or inside edge of the door as possible to offer maxi-
mum entrapment protection. It is very important that
both wall brackets be mounted at the same height
for proper alignment.
The brackets may be temporarily mounted to the jamb with a 1” flat
head nail (provided), permanently mount the wall mounting bracket
to both door jambs. In some installations it may be necessary to
attach wooden spacers to the wall to achieve the required clear-
ance. Expansion bolts (not included) may be required to attach
brackets to walls constructed of materials other than wood or gyp-
sum.
Step 15: Install Wired Infrared Safety Sensor Wall Mounting Brackets
Attach the “U” brackets to the wall brackets
with a 1/4 -20 carriage bolt, washer and hex
nut (provided). Insert the bolt from the inside
of the “U” bracket and hand tighten only at this
time.

Related product manuals