EasyManua.ls Logo

Weil-McLain EG - Page 34

Weil-McLain EG
40 pages
Print Icon
To Next Page IconTo Next Page
To Next Page IconTo Next Page
To Previous Page IconTo Previous Page
To Previous Page IconTo Previous Page
Loading...
Part Number 550-110-639/0512
34
EG
PEG
EGH Gas-firEd boilErssEriEs 4 — boilEr manual
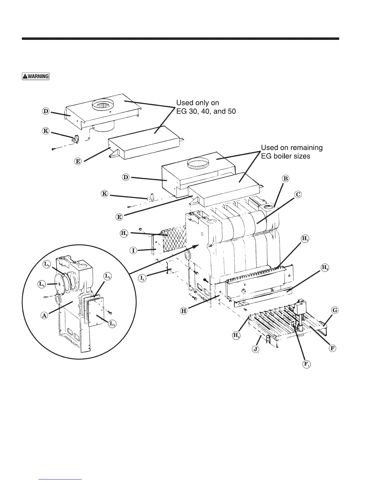
Replacement parts — EG/PEG (continued)
The boiler contains ceramic fiber and fiberglass materials. Use care when handling these materials per instructions on
page 28
of this manual. Failure to comply could result in severe personal injury.
NOTE 1: Order sufficient quantities to replace all orifices within
a base

Related product manuals