EasyManua.ls Logo

Whirlpool E1A30HS035V - Adjusting the Thermostat;High Limit Control

Whirlpool E1A30HS035V
16 pages
Print Icon
To Next Page IconTo Next Page
To Next Page IconTo Next Page
To Previous Page IconTo Previous Page
To Previous Page IconTo Previous Page
Loading...
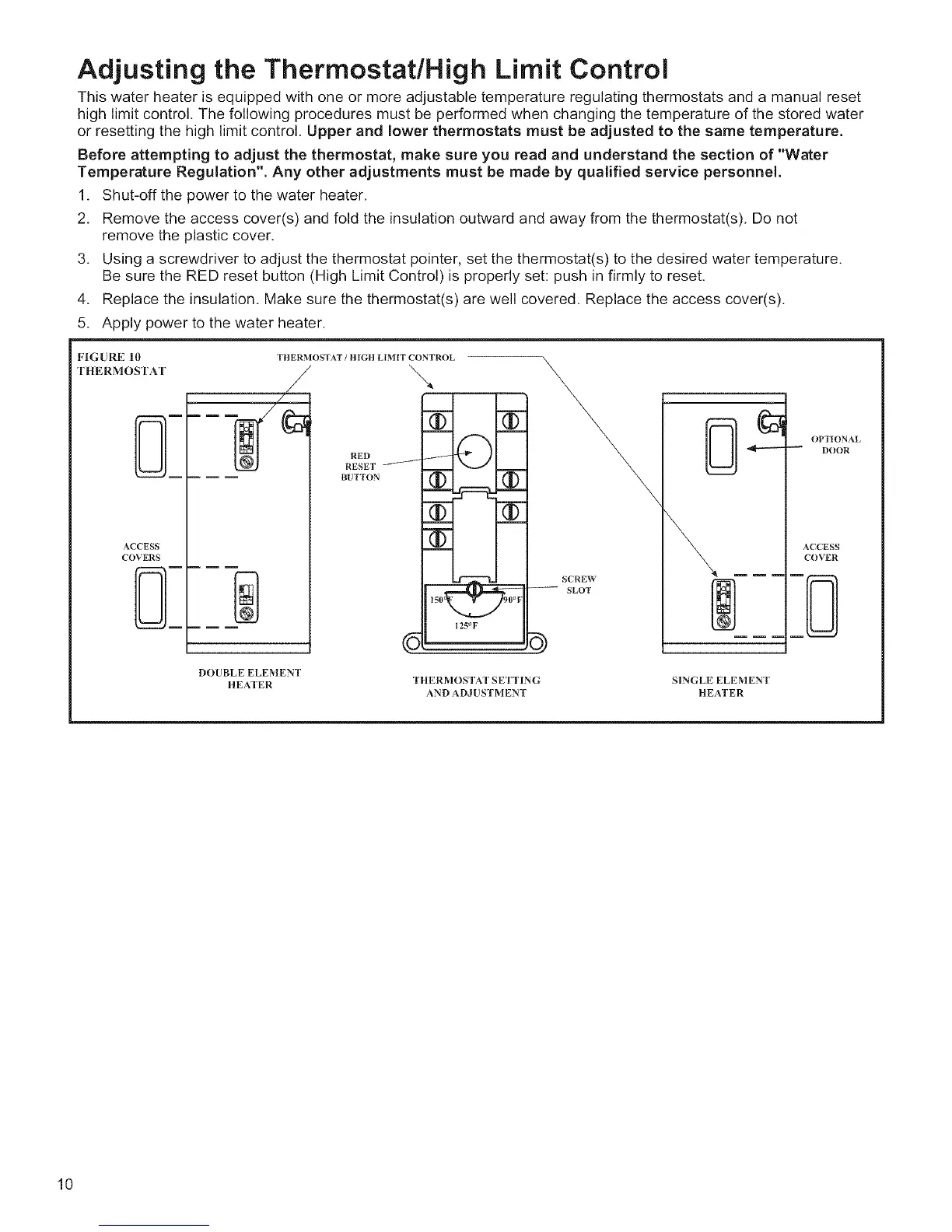
Adjusting the Thermostat/High Limit Control
This water heater is equipped with one or more adjustable temperature regulating thermostats and a manual reset
high limit control. The following procedures must be performed when changing the temperature of the stored water
or resetting the high limit control. Upper and lower thermostats must be adjusted to the same temperature,
Before attempting to adjust the thermostat, make sure you read and understand the section of "Water
Temperature Regulation". Any other adjustments must be made by qualified service personnel.
1. Shut-off the power to the water heater.
2. Remove the access cover(s) and fold the insulation outward and away from the thermostat(s). Do not
remove the plastic cover.
3. Using a screwdriver to adjust the thermostat pointer, set the thermostat(s) to the desired water temperature.
Be sure the RED reset button (High Limit Control) is properly set: push in firmly to reset.
4. Replace the insulation. Make sure the thermostat(s) are well covered. Replace the access cover(s).
5. Apply power to the water heater.
FIG UIPJg 10 THER'_tOSTAT / |]tGII LI'_{IT CONTROL
THERMOSTAT /
ACCESS
COVERS
D:___
DOUBLE ELEMENT
HEATER
RED
RESET /
BUTTON
(I) (1)
125°F
SCREW
SLOT
THERMOSTAT SETTING
AND ADJUSTMENT
SINGLE ELEMENT
HEATER
OPTIONAL
DOOR
ACCESS
COVER
___:D
10

Related product manuals