EasyManua.ls Logo

Wolf CGB-2K-20 - Dimensions and Technical Drawings; CGB-2 Dimensions

Wolf CGB-2K-20
108 pages
Print Icon
To Next Page IconTo Next Page
To Next Page IconTo Next Page
To Previous Page IconTo Previous Page
To Previous Page IconTo Previous Page
Loading...
8 3064810_201804
Darstellung A3 auf 1:9
TEB-lan
8614060
1
1
.
0,000
TW05046/14
CGB-2-14
Catia V5 R19
17.07.14
Lan
1:5
344
84
100100
70
440
654
40
31
70
165
261
190
790
378
48
Darstellung A3 auf 1:9
TEB-lan
8614060
1
1
.
0,000
TW05046/14
CGB-2-14
Catia V5 R19
17.07.14
Lan
1:5
344
84
100100
70
440
654
40
31
70
165
261
190
790
378
48
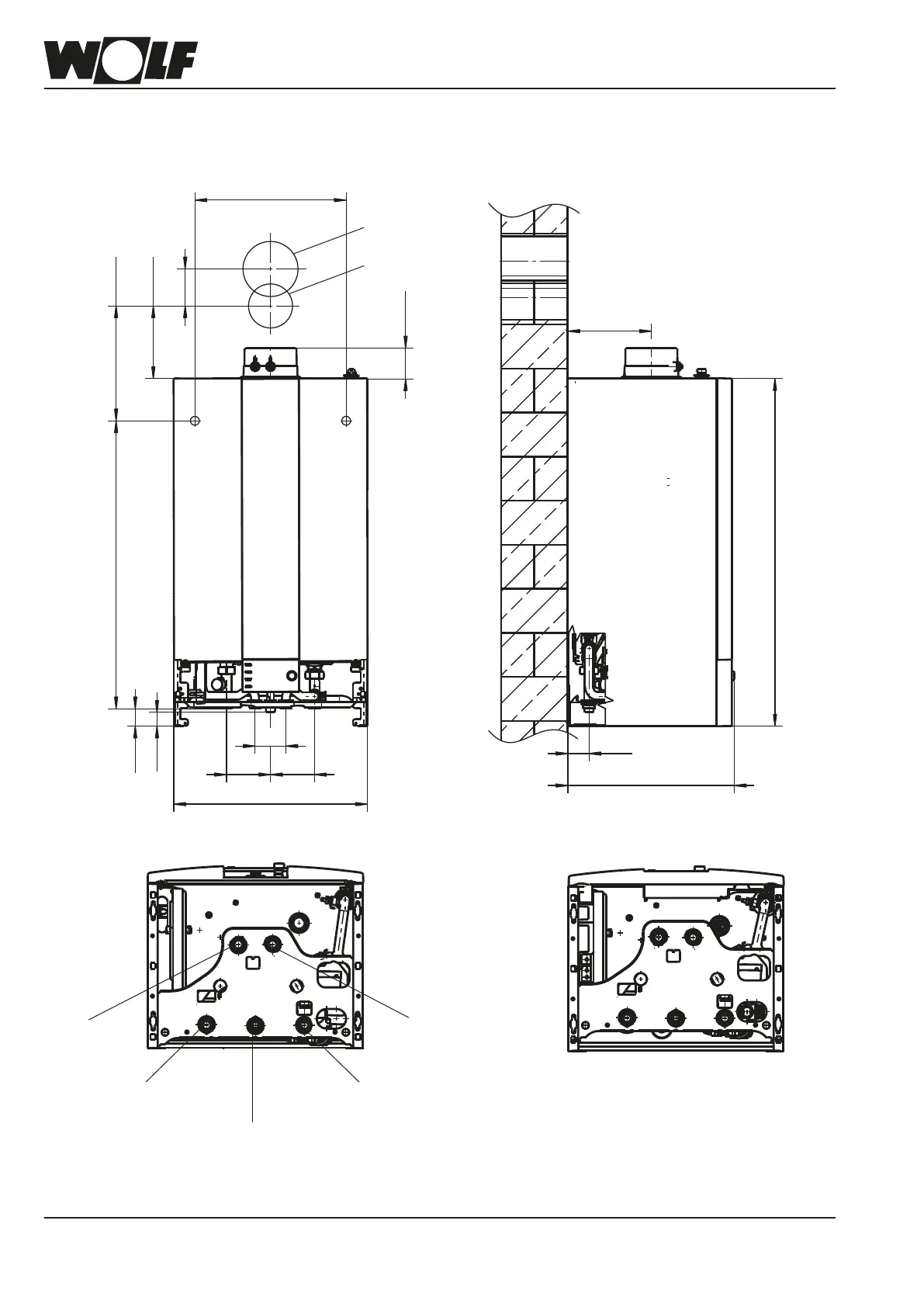
3. Dimensions
CGB-2
Wallmountedgascondensingboiler
Ø 60/100
Ø 80/125
Cylinder return
G¾”
Cylinderow
G¾”
Heatingow
G¾”
Heating return
G¾”
Gas connection
R½”
*
Darstellung A3 auf 1:9
TEB-lan
8614060
1
1
.
0,000
TW05046/14
CGB-2-14
Catia V5 R19
17.07.14
Lan
1:5
344
84
100100
70
440
654
40
31
70
165
261
190
790
378
48

Other manuals for Wolf CGB-2K-20

Related product manuals