EasyManua.ls Logo

Wolf FGB-K-28 - Page 91

Wolf FGB-K-28
104 pages
Print Icon
To Next Page IconTo Next Page
To Next Page IconTo Next Page
To Previous Page IconTo Previous Page
To Previous Page IconTo Previous Page
Loading...
3064458_201811
91
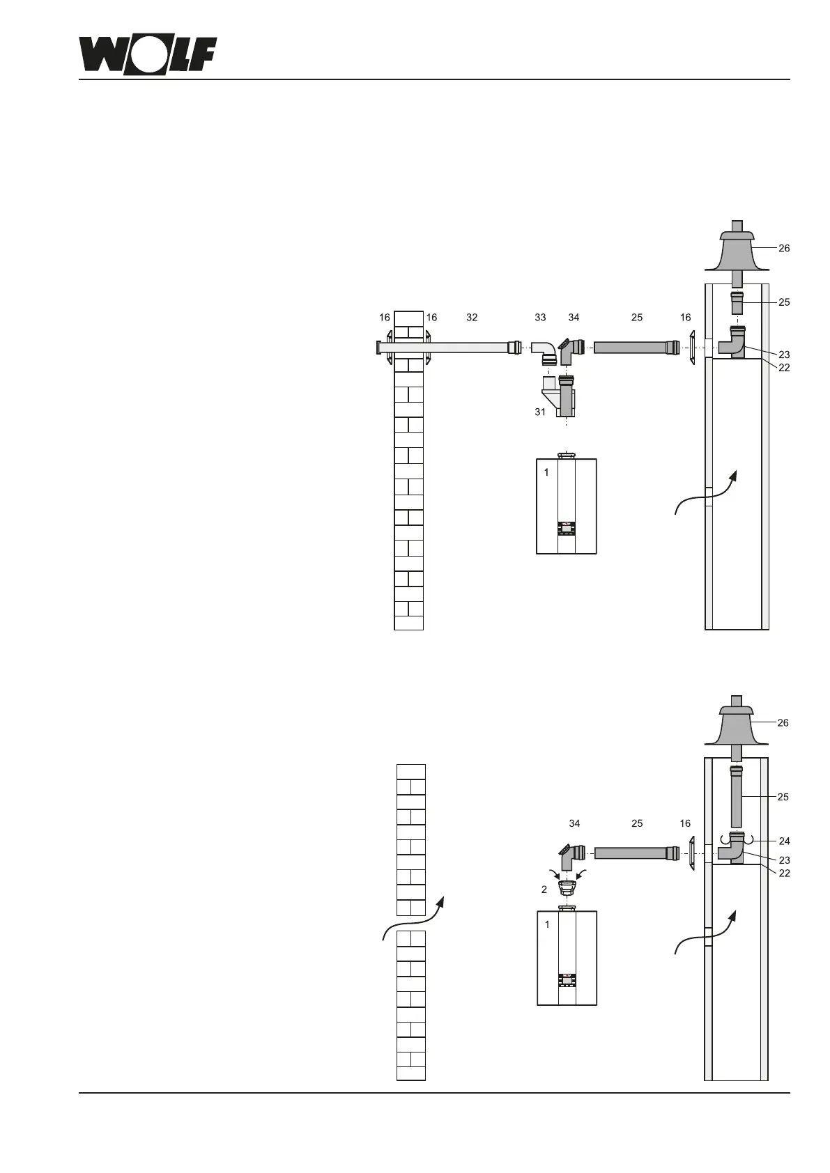
Maintain the following clearance between the internal shaft wall and
the ue: for round shafts: 3 cm
for square shafts: 2 cm
1 Gas condensing boiler
2 Adaptor DN60/100
to DN80/125
16 Pipe collar
22 Support rail
23 Support bend 87° DN80
24 Spacer
25 PPuepipeDN80
26 Shaft cover with
UV resistant terminal
31 Balanceduedistributor
80/80 mm
32 Air inlet pipe Ø 125 mm
33 Bend 90° DN80
34 87° tee with
inspection port DN80
35 Flue pipe DN80
500 mm
1000 mm
2000 mm
Install the eccentric balanced ue distributor 80/80 mm (31) for separate air supply/ue
gas routing downstream of the connection adaptor DN80/125 (2) with a test connector.
When connecting a balanced ue certied acc. to Building Regulations, observe the
permit of the relevant body.
Install the horizontal ue pipe with a slope of approx. (6 cm/m) towards the boiler.
Route the horizontal air supply with a 3° slope towards the outside – provide the air
inlet with a wind protector; permissible wind pressure at the air inlet 90 Pa. The burner
will not start if the wind pressure is higher.
Eccentricbalancedue
Secondary
ventilation
C53
Secondary
ventilation
C53
31.Technicalinformation,balancedue

Related product manuals