EasyManua.ls Logo

Wolf ICBDF304 - Page 26

Wolf ICBDF304
76 pages
Print Icon
To Next Page IconTo Next Page
To Next Page IconTo Next Page
To Previous Page IconTo Previous Page
To Previous Page IconTo Previous Page
Loading...
Wolf Induction and Electric Cooktops 26
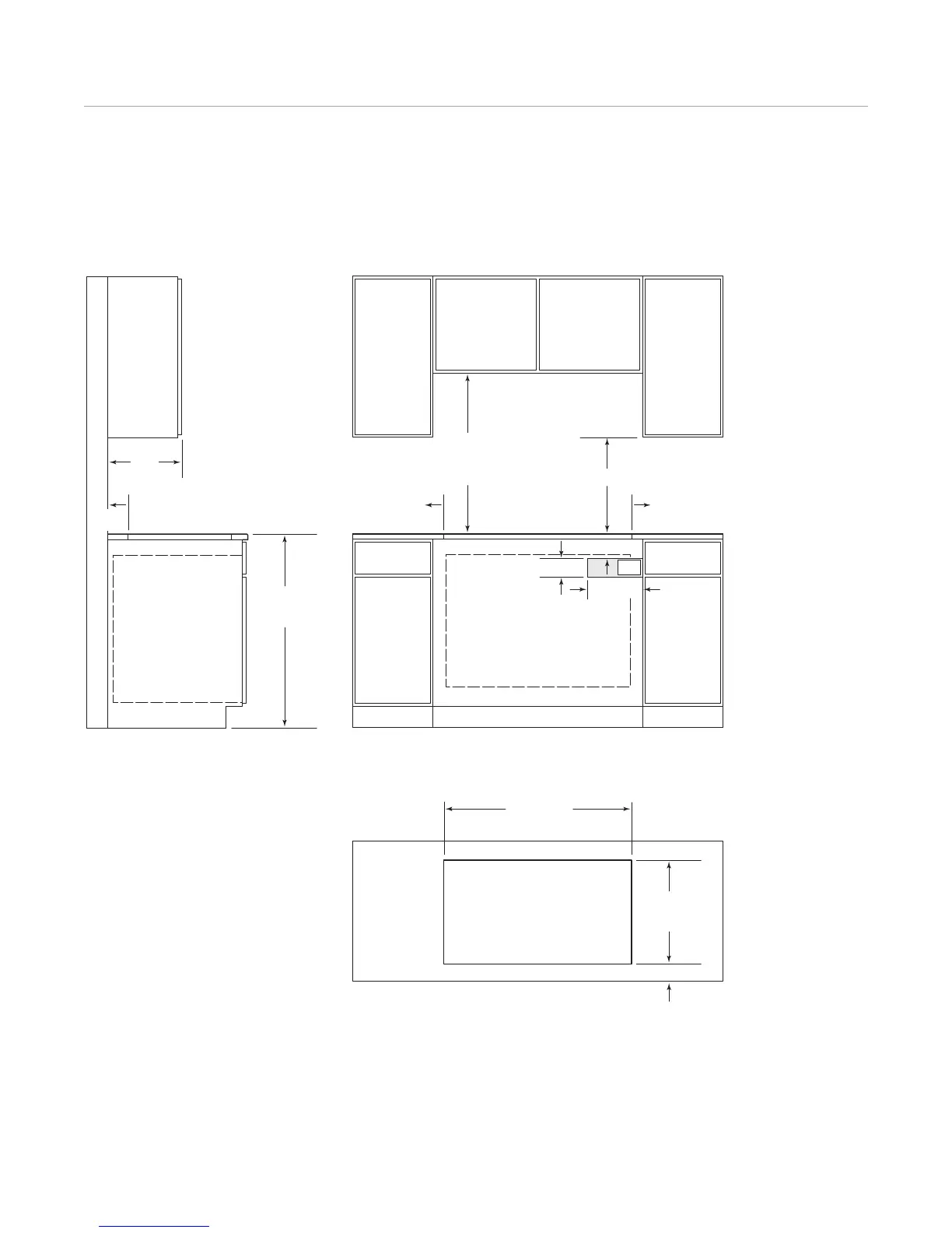
457 mm min
914 mm
F
LOOR TO
COUNTERTOP
762 mm min
C
OUNTERTOP
TO COMBUSTIBLE
MATERIALS
914 mm OVEN OPENING
114 mm
254 mm
89 mm
E
SEE COUNTERTOP
CUT-OUT BELOW
873 mm
CUT-OUT WIDTH
COUNTERTOP CUT-OUT
FRONT
489 mm
CUT-OUT
DEPTH
64 mm min
51 mm T
O
COMBUSTIBLE
*
51 mm T
O
COMBUSTIBLE
*
51
mm*
SIDE
CABINET
330 mm
max
*Minimum clearance from cooktop cut-out to combustible materials up to 457 mm above countertop.
NOTE: Electrical location applies only to installation with built-in oven.
914 mm Framed Cooktop
STANDARD INSTALLATION

Other manuals for Wolf ICBDF304

Related product manuals