EasyManua.ls Logo

Wolf ICBDF304 - Page 6

Wolf ICBDF304
76 pages
Print Icon
To Next Page IconTo Next Page
To Next Page IconTo Next Page
To Previous Page IconTo Previous Page
To Previous Page IconTo Previous Page
Loading...
Wolf Built-In Ovens 6
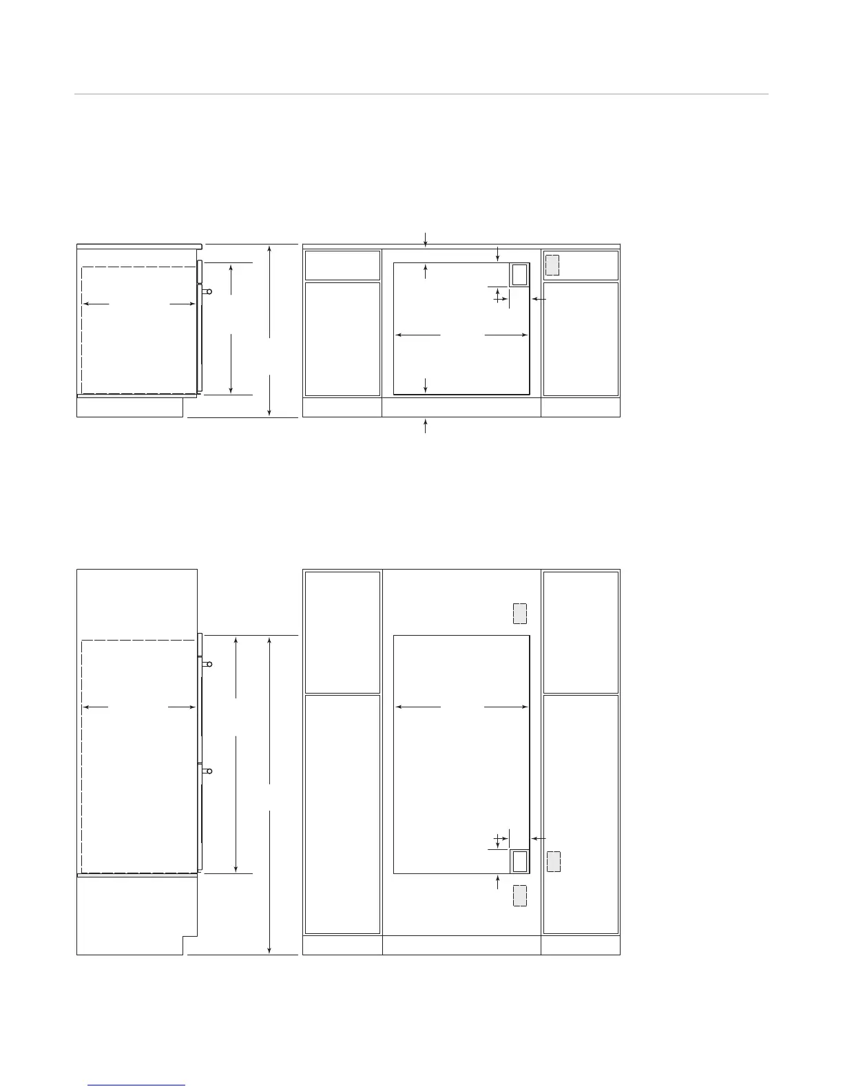
DIMENSION WILL VARY*
121 mm TYPICAL*
914 mm
F
LOOR TO
C
OUNTERTOP
*Dimension must accommodate height of oven trim.
NOTE: Location of electrical supply within opening may require additional cabinet depth. Dashed line represents profile of unit.
E
724 mm
OPENING WIDTH
6
91 mm
OPENING
HEIGHT
610 mm min
O
PENING DEPTH
E
127
m
m
102
m
m
F
RONT VIEWSIDE VIEW
1702 mm
TYPICAL*
1260 mm
OPENING
HEIGHT
E
E
E
724 mm
OPENING WIDTH
E
127
mm
102
mm
610 mm min
OPENING DEPTH
*Dimension must accommodate height of oven trim.
NOTE: Location of electrical supply within opening may require additional cabinet depth. Dashed line represents profile of unit.
FRONT VIEWSIDE VIEW
762 mm E Series Double Oven
STANDARD INSTALLATION
762 mm E Series Single Oven
STANDARD INSTALLATION

Other manuals for Wolf ICBDF304

Related product manuals