EasyManua.ls Logo

Wolf R488 - Page 4

Wolf R488
5 pages
Print Icon
To Next Page IconTo Next Page
To Next Page IconTo Next Page
To Previous Page IconTo Previous Page
To Previous Page IconTo Previous Page
Loading...
Planning Information
48" (1219) Gas Ranges
MODELS R488 / R486C / R486G / R484CG / R484DG / R484F / R482CF
Dimensions in parentheses are in
millimeters unless otherwise specified.
4
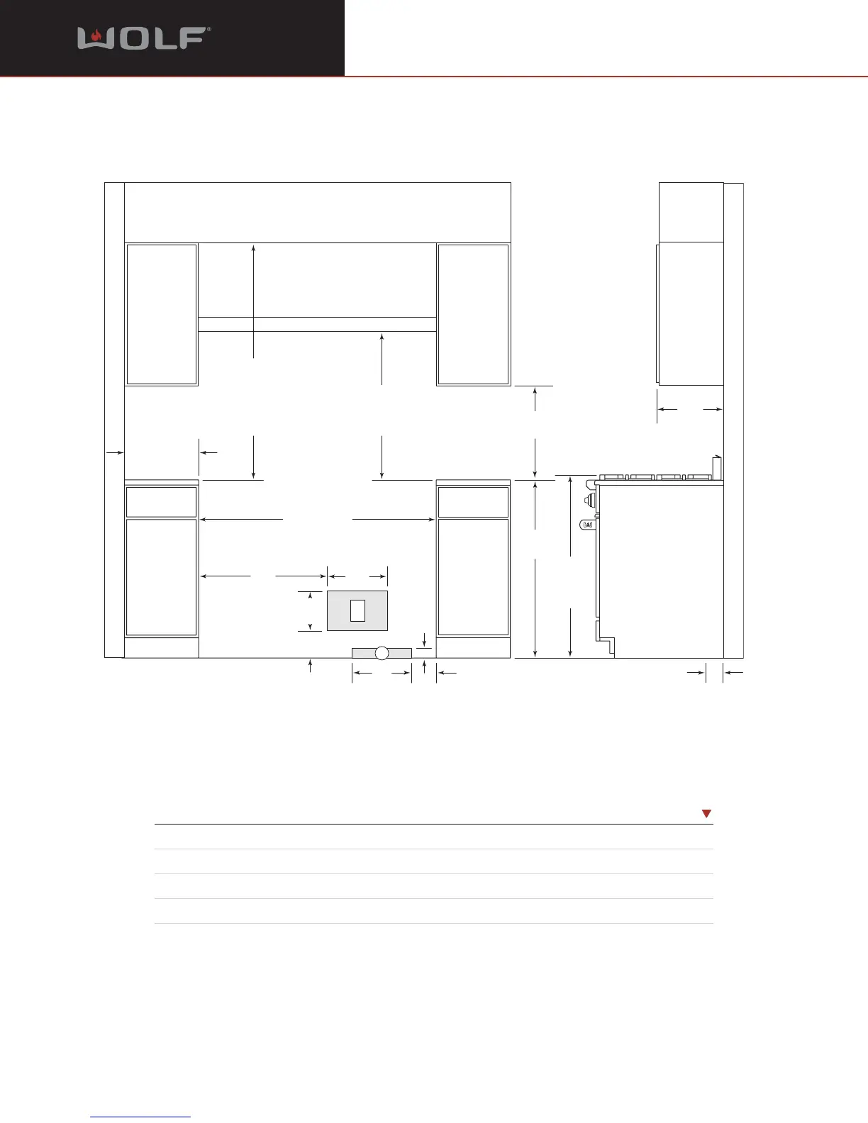
INSTALLATION SPECIFICATIONS
DIMENSIONS
Overall Width of Range 48" (1219)
Finished Rough Opening Width 48
1
/4" (1226)
Location of Gas Supply Within shaded area
Location of Electrical Within shaded area
See Installation Instructions shipped with unit for detailed specifications.
Refer to the Wolf Design Guide for additional specifications.
30"min (762)
COUNTERTOP
TO COMBUSTIBLE
MATERIALS
36"min (914)
FOR CHARBROILER
30"(762) TO 36"(914)
COUNTERTOP TO
BOTTOM OF
VENTILATION HOOD
VENTILATION HOOD
LOCATION OF GAS SUPPLY EXTENDS
3" (76) ON FLOOR FROM BACK WALL
48
1
/4" (1226)
FINISHED ROUGH OPENING WIDTH
3"
(76)
ISLAND INSTALLATIONS: 12" (305) MINIMUM CLEARANCE FROM BACK
OF RANGE TO COMBUSTIBLE REAR WALL ABOVE COUNTERTOP –
0" (0) TO NON-COMBUSTIBLE MATERIALS
26"
(660)
G
5"
(127)
2"
(51)
12"
(305)
E
12"
(305)
5
1
/2"
(140)
8"
(203)
36"
(914)
18"min (457)
TO COUNTERTOP
37"
(940) TO
COOKING
SURFACE
13" max
(330)
6"min (152)
TO
COMBUSTIBLE
MATERIALS
(BOTH SIDES)

Related product manuals