EasyManua.ls Logo

Woods RC4 - Page 25

Woods RC4
48 pages
Print Icon
To Next Page IconTo Next Page
To Next Page IconTo Next Page
To Previous Page IconTo Previous Page
To Previous Page IconTo Previous Page
Loading...
Dealer Service 25
MAN1048 (4/16/2014)
until it runs out of back level hole threads. Install
level plug and breather plug (24). Tighten all plugs.
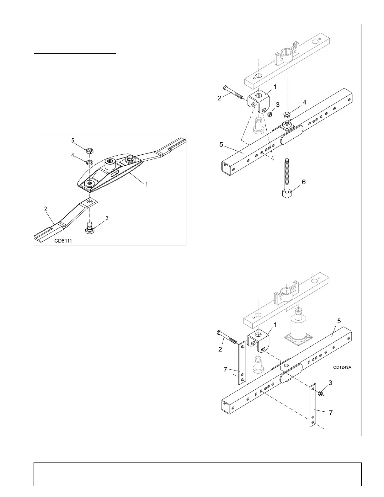
CROSSBAR REMOVAL
1. It is necessary to gain access to bottom side of
cutter for crossbar removal. See OWNER
SERVICE, page 18.
NOTE: You will need to use either the puller screw
(Item 6, Figure 17) or a small hydraulic jack to
remove the crossbar.
2. To make crossbar removal easier, remove blades
as shown in Figure 16.
Figure 16. Blade Removal
3. Remove cotter pin and castle nut from bottom of
crossbar, Figure 17.
4. Attach a clevis (1) to each end of crossbar, using
blade pins, spacers, keyhole plates, and blade pin
clips.
5. Position tube assembly (5) with threaded nut
toward crossbar for puller screw removal or down
for hydraulic jack removal.
6. For removal with puller screw, attach tube (5) to
each clevis with bolts (2) and nuts (3). Place pad
(4) in nut and thread puller screw (6) into nut from
bottom. Tighten until pad is solid against gearbox
shaft. For best results, strike head of puller screw
with a hammer while tightening with a wrench.
7. For removal with a jack, attach tube to each clevis
with puller links (7), bolts (2), and nuts (3). Place
jack on tube with end of jack pressing against
gearbox shaft. Slowly apply force with jack.
NOTE: Hydraulic jack will not operate if tipped
more than 90-degrees. Use care to prevent bend-
ing crossbar during removal. Figure 17. Crossbar Removal
1. Crossbar
2. Blade
3. Blade pin
4. Lock washer
5. 1-1/8 NF Jam nut
1. Clevis
2. 5/8 NC x 4 Cap screw
3. 5/8 NC Hex nut
4. Pad assembly
5. Tube assembly
6. Screw assembly
7. Puller link

Related product manuals