EasyManua.ls Logo

Worcester 24ijunior - Page 7

Worcester 24ijunior
44 pages
Print Icon
To Next Page IconTo Next Page
To Next Page IconTo Next Page
To Previous Page IconTo Previous Page
To Previous Page IconTo Previous Page
Loading...
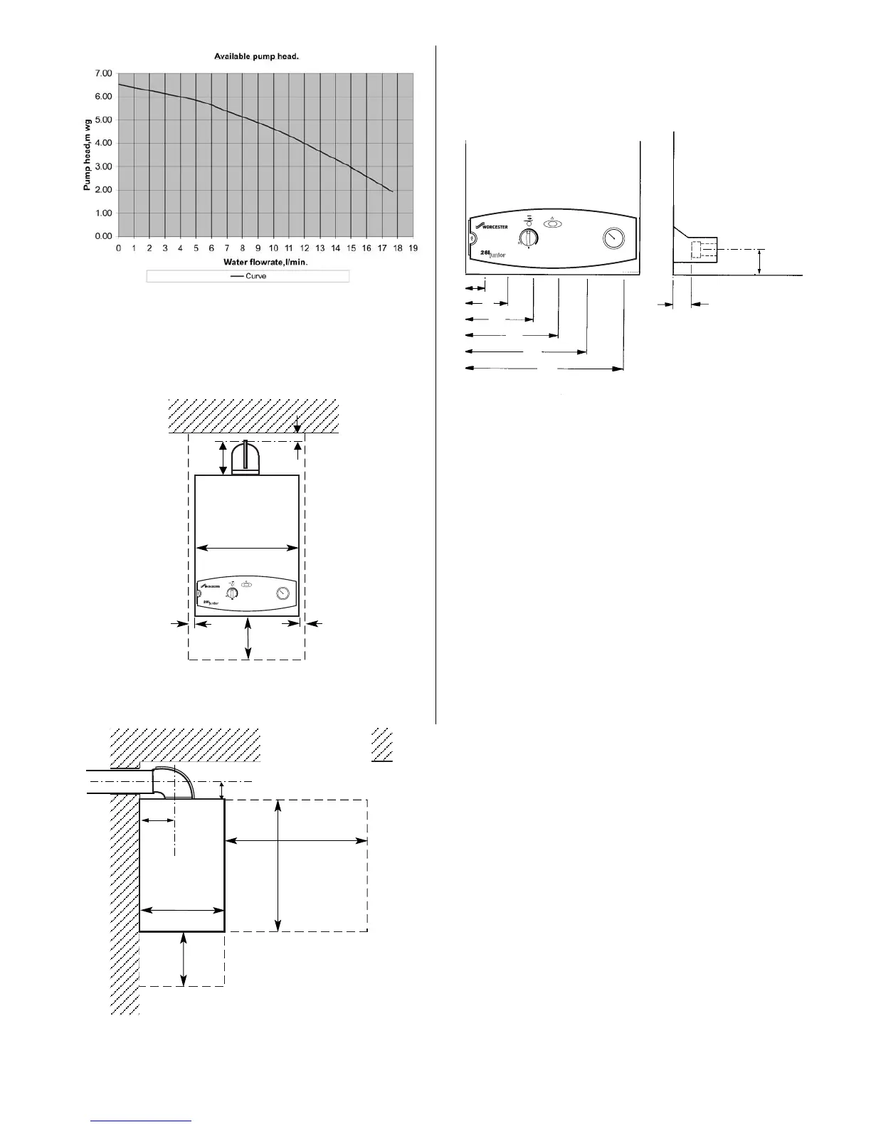
Fig. 4. Appliance casing dimensions and
required clearances (side view).
All dimensions in mm
24i 28i
A CH Flow = 70 90
B Relief Valve Discharge = 88 108
C DHW Outlet = 135 155
D Gas = 200 220
E Cold Water Inlet = 265 285
F CH Return = 330 350
Fig. 3. Appliance casing dimensions and
required clearances for installation/servicing
All dimensions in mm
30
158
10
10
7
B
C
D
E
130
24i = 400
102
600
600
203
325
200
200
F
All dimensions in mm
28i = 440
A
Fig. 5. Pipework connections
Unventilated Compartment — for clearances refer to Table 8
Unventilated Compartment — Refer to Table 8
Dimensions
A,B,E,F
18
Minimum system flow rate
Please ensure that the external system flow rate returning to the
appliance is greater than 2 litres/minute.

Related product manuals