EasyManua.ls Logo

Worcester OIL HEATSLAVE 20/25

Worcester OIL HEATSLAVE 20/25
40 pages
To Next Page IconTo Next Page
To Next Page IconTo Next Page
To Previous Page IconTo Previous Page
To Previous Page IconTo Previous Page
Loading...
18
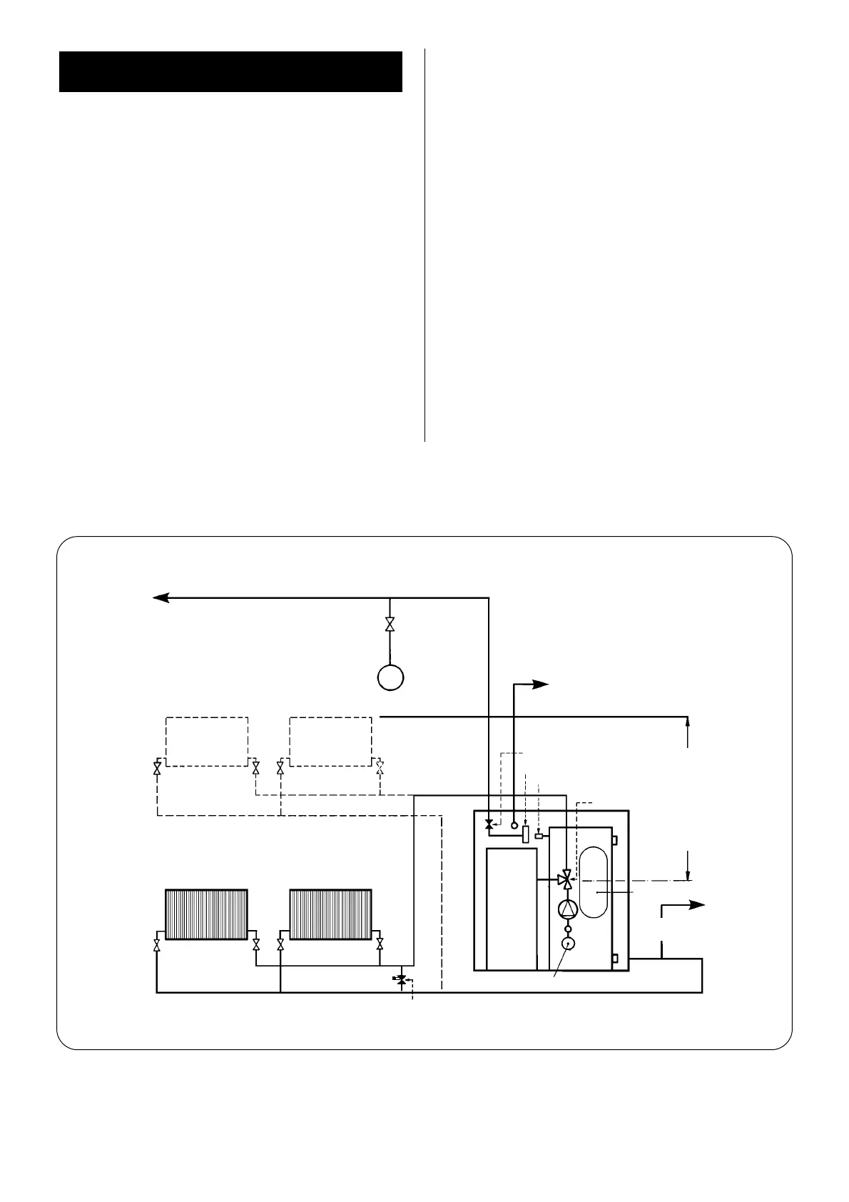
Fig. 15. Sealed Primary System.
Domestic hot
water outlet
Mains cold isolating valve
Heating flow (22 mm)
Water main
Heating return (22 mm)
Domestic cold water
Note: The appliance mains
cold water supply should be
the first connection off the
water main
British Standard stop valve
(Fixed spindle type)
Static head of system
Expansion vessel
Pressure gauge
Pump
Heatslave
tank
To system filling device
See Fig. 16
Flow switch
Pressure relief valve
Diverter valve
See Figs. 15 and 16.
10.1 The system must comply with the requirements of BS
7074:1 and BS 5449:1.
10.2 A manual reset overheat thermostat is located on the
underside of the electrical panel and is accessible by removing
the cabinet front panel. If a boiler overheat condition arises the
burner will remain inoperative until the thermostat button is
reset. See Fig. 3, 4, 5 and 6.
10.3 The pressure relief valve operates at 3 bar (45 lb/in
2
). The
discharge must be directed away from the electrical
components or where it might be a hazard to the user.
10.4 The pressure gauge, located in the pipe below the pump,
indicates the system pressure which must be maintained.
10.5 The 12 litre expansion vessel is charged to 0.5 bar and is
suitable for a static head of 5 metres (17.5 ft). The pressure can
be increased for a static head greater than 5 metres (17.5 ft).
10.6 With an initial system pressure of 0.5 bar, a system
capacity of about 180 litres can be accommodated. Refer to BS
7074 Pt 1 for more information.
Where the system volume exceeds the value given in Table 13 an
additional expansion vessel, of suitable volume, should be fitted
to the heating return pipework as close to the boiler as possible.
NOTE: The values given in Table 13 are the total system volumes.
The primary water capacity given in Table 1 should be deducted
from the total system volume when calculating the volume for
radiators, pipework etc.
10.7 The method of filling the appliance can be either method 1
or 2 shown in Fig 16. The filling point must be at low level and
must never be a permanent direct fixing to the mains water
supply.
10.8 Water loss must be replaced, see Fig 14. The connection
should be made to the central heating return pipe as close to the
appliance as possible.
10.9 The make-up vessel, where used, must be fitted with a non-
return valve.
10.10 Repeated venting loses water from the system. It is
essential that this water is replaced and the system pressure
maintained.
10.11 Connections to the mains water supply must not be
made without the authority of the local Water Company.
10.12 The appliance incorporates a circulating pump. No other
circulating pump is required. The pump is factory set to the
maximum setting (No: 3) and should not be altered as this
would affect the domestic hot water performance.
10.13 Connections in the system must resist a pressure of up to
3 bar.
10.14 Radiator valves must conform to BS 2767 (10).
10.15 Other valves used should conform to the requirements of
BS 1010.
10. Sealed Primary System
Automatic bypass valve to be fitted
where thermostatic radiator valves are
fitted on all radiators

Related product manuals